Cipreshout 12

2994 GA BARENDRECHT
Verkocht onder voorbehoud
verkocht onder voorbehoud

Omschrijving

Op zoek naar een instapklare gezinswoning waar ruimte, licht en comfort samenkomen? Dan is Cipreshout 12 in Barendrecht precies wat u zoekt! Deze moderne en uitstekend onderhouden twee-onder-een-kapwoning biedt met een woonoppervlakte van maar liefst 147 m² alles wat u nodig heeft om heerlijk te wonen. De woning combineert eigentijds wooncomfort met een praktische indeling en een stijlvolle afwerking. Met een ruime woonkamer met houten vloer, moderne keuken, drie slaapkamers (waarvan één met inloopkast), een grote zolder en een zonnige tuin met veel privacy is dit een huis waar u zich direct thuis zult voelen. Daarnaast beschikt de woning over een garage en een oprit met eigen parkeergelegenheid. De ligging van de woning is uniek in een aparte straat in de wijk met een eigen entree aan beide zijden van de straat.

Indeling met indicatieve maten

BEGANE GROND:

Via de verzorgde voortuin komt u binnen in de ruime hal met garderobe, toiletruimte en trapopgang. Vanuit de hal stapt u via de glazen paneeldeur de lichte woonkamer binnen: een sfeervolle leefruimte met een fraaie houten vloer, grote ramen en neutrale kleuren. De woonkamer (ca. 33 m²) biedt voldoende ruimte voor een comfortabele zithoek en een royale eettafel, ideaal voor gezellige avonden met familie of vrienden.
Aan de voorzijde bevindt zich de moderne open keuken (ca. 9 m²), uitgevoerd in een lichte kleurstelling met hoogglans fronten en een strak werkblad. De keuken is voorzien van een 5 pits gaskookplaat, RVS afzuigkap, combi oven, vaatwasser en koelkast. Dankzij de grote ramen met shutters is er veel natuurlijke lichtinval, wat zorgt voor een frisse, open uitstraling.
Vanuit de hal heeft u toegang tot de garage met een elektrische garagedeur en een uitstortgootsteen. Middels een aparte deur is de achtertuin te bereiken.

ACHTERTUIN:

De verzorgde achtertuin is een heerlijke plek om buiten te zijn. De combinatie van gras, bestrating en groen zorgt voor een prettige balans tussen onderhoudsvriendelijkheid en sfeer. Dankzij de volgroeide hagen geniet u hier van veel privacy. De tuin biedt o.a. ruimte voor een loungehoek, eettafel en speelplek voor kinderen. Via de tuin is er ook toegang tot de garage en de zijkant van de woning.

EERSTE VERDIEPING:

De eerste verdieping telt drie ruime slaapkamers en een moderne badkamer. De hoofdslaapkamer (ca. 16 m²) aan de achterzijde beschikt over een aangrenzende inloopkast met schuifdeuren, ideaal voor extra opbergruimte. Deze slaapkamer is eventueel op te splitsen in 2 kamers. De tweede slaapkamer (ca. 19 m²) aan de voorzijde biedt toegang tot het Franse balkon, waar 's ochtends heerlijk het zonnetje naar binnen schijnt door de openslaande deuren. Deze slaapkamer is voorzien van vloerverwarming. De derde slaapkamer (ca. 8 m²) is eveneens ruim en geschikt als kinder-, logeer- of werkkamer.
De badkamer (ca. 6 m²) is strak en modern afgewerkt met grote grijze tegels en glad stucwerk, een inloopdouche, een hangend toilet en een dubbel wastafelmeubel met verlichte en verwarmde spiegel.

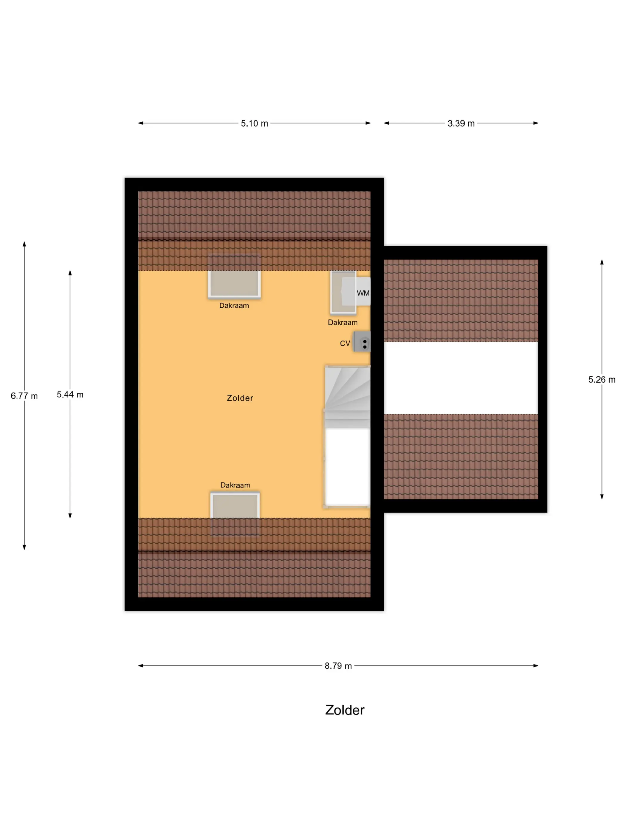
TWEEDE VERDIEPING:

Via een vaste trap bereikt u de ruime zolderverdieping. Deze multifunctionele ruimte (ca. 27 m²) kan eenvoudig worden ingericht als vierde slaapkamer, werkkamer of hobbyruimte. De zolder heeft 3 Velux dakramen die zorgen voor veel licht en beschikt over een aparte opstelplaats voor de CV-installatie en de wasmachine en de droger. Er is veel extra bergruimte achter de knieschotten.

- Ruime en sfeervolle 2/1 kap woning
- Gelegen op een ruim en praktisch perceel
- Garage met eigen parkeerplaats op de oprit
- Trappen afgewerkt met Upstairs trapbekleding
- Nagenoeg alle wanden afgewerkt met glad stucwerk
- Moderne keuken en badkamer
- Meerdere slaapkamers mogelijk
- Royale tuin aan 3 zijden met veel privacy
- Gelegen in een rustige, kindvriendelijke wijk nabij scholen, winkels, openbaar vervoer en uitvalswegen

Makelaar: Marco Bos
Lees meer

Kenmerken

Overdracht

Vraagprijs
€ 725.000,- k.k.
Status
verkocht onder voorbehoud
Aanvaarding
in overleg

Bouw

Soort woning
woonhuis
Soort woonhuis
eengezinswoning
Type woonhuis
twee onder een kapwoning
Aantal woonlagen
3
Bouwjaar
2006
Onderhoud binnen
goed
Onderhoud buiten
goed
Voorzieningen
dakraam

Energie

Energielabel
A
Verwarming
cv ketel, vloerverwarming gedeeltelijk
C.V.-ketel
gas gestookte combi-ketel uit 2006

Oppervlakten en inhoud

Woonoppervlakte
147 m²
Perceeloppervlakte
370 m²
Inhoud
634 m³
Inpandige ruimte oppervlakte
21 m²
Buitenruimte oppervlakte
4 m²

Indeling

Aantal kamers
5

Buitenruimte

Ligging
aan rustige weg, in woonwijk

Garage / Schuur / Berging

Garage
aangebouwde stenen garage
Parkeergelegenheid
op eigen terrein

Plattegronden

Downloads

Video's

Locatie

Marco Bos

Interesse in deze woning?

Marco Bos

Vraag een bezichtiging aan

Vraag een bezichtiging aan of neem contact met ons op