Concertweg 19

2992 NM BARENDRECHT
Verkocht

Omschrijving

Karakteristieke vrijstaande woning aan het water met garage aan de geliefde Concertweg!

In de geliefde woonwijk Nieuweland staat deze schitterende vrijstaande woning in boerderijstijl, met inpandige garage en een prachtig aangelegde achtertuin aan het water. De woning verkeert in uitstekende staat van onderhoud en combineert comfort met sfeervolle details. Op de begane grond ligt een luxe natuurstenen vloer met vloerverwarming. De royale woonkamer is verder voorzien van een sfeervolle gashaard met natuurstenen schouw, sierlijsten aan het plafond en een fraaie erker aan de achterzijde, compleet met markiezen. Via openslaande deuren bereikt u de compleet ingerichte keuken. Op de eerste verdieping vindt u drie ruime slaapkamers en moderne sanitaire voorzieningen. De luxe badkamer beschikt eveneens over vloerverwarming voor extra comfort. Een vlizotrap geeft toegang tot de royale bergvliering met een handig dakraam. De woning is verder uitgerust met een centraal stofzuigsysteem en automatisch sproeisysteem voor de tuin – praktisch en tijdbesparend. De achtertuin is een waar plaatje. Een plek waar u volop kunt genieten van rust en natuur. Kortom: een unieke kans om te wonen in een perfect onderhouden woning met charme en hedendaagse woonwensen.

INDELING MET INDICATIEVE MATEN:

BEGANE GROND

De voortuin is voorzien van sierbeplanting, sierbestrating en verlichting. De achtertuin is zowel via links als rechts van de woning bereikbaar, wat extra gebruiksgemak biedt. Tevens is er de mogelijkheid om twee auto's op eigen oprit te parkeren. De voorgevel is afgewerkt met gezellige luiken aan het keukenraam en markiezen.

Entree, ruime hal, meterkast, trap naar de 1e verdieping, toegang tot de garage, fraai afgewerkte toiletruimte voorzien van een hangend toilet en fonteintje. De toiletruimte is geheel betegeld in een beige/grijs kleurstelling.

Sfeervolle lichte tuingerichte woonkamer (ca. 44 m2) voorzien van een lichte natuurstenen vloer met vloerverwarming. Deze royale woonkamer is verder voorzien van een sfeervolle gashaard met natuurstenen schouw, sierlijsten aan het plafond en een fraaie erker aan de achterzijde, compleet met markiezen. Door de grote raampartij biedt het woongedeelte een aangename natuurlijke lichtinval. Middels een loopdeur heeft u toegang tot de zonnige achtertuin. Via openslaande deuren bereikt u de compleet ingerichte keuken.

De moderne half/open keuken (ca. 9 m2) is gelegen aan de voorzijde van de woning en is uitgevoerd in een U-opstelling. Deze complete keuken is voorzien van diverse inbouwapparatuur zoals een koelkast, vrieskast, inductie kookplaat, RVS afzuigkap, combimagnetron en een vaatwasser. Het geheel is uitgevoerd in lichte kleuren en afgewerkt met een houten aanrechtblad en natuurstenen vloer met vloerverwarming.

De inpandige garage (ca. 19 m2) is verwarmd en geïsoleerd en beschikt over vloertegels, de wasmachine- en drogeraansluiting, centraal stofzuigsysteem installatie en openslaande garagedeuren. Via een loopdeur heeft u toegang tot de achtertuin.

De achtertuin is een waar plaatje. Een plek waar u volop kunt genieten van rust en natuur. De achtertuin beschikt over sierbestrating, sierbeplanting, 2 achterom, een gezellige vijver, buitenkraan, verlichting, stopcontacten, een vlonder aan het water en twee tuinhuizen.

Tuinhuis 1 (ca. 11 m2).
Tuinhuis 2 (ca. 7 m2).

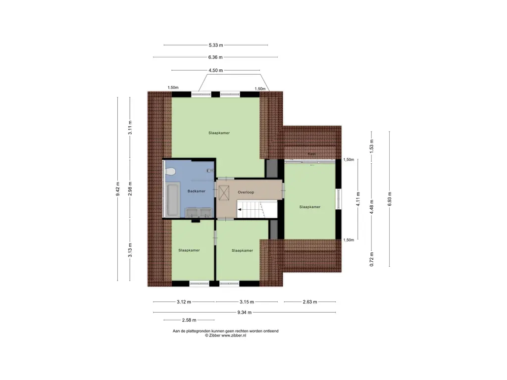
1e VERDIEPING

Ruime overloop met toegang tot alle vertrekken. Middels een vlizotrap is de bergvliering te bereiken. Bergvliering voorzien van verlichting en een dakraam.

Slaapkamer 1 (ca. 14 m2) is gelegen aan de achterzijde van de woning en beschikt over twee handmatig bedienbare markiezen, hor en vloerbedekking.
Slaapkamer 2 (ca. 11 m2) is gelegen aan de zijkant van de woning en beschikt over elektrisch bedienbaar rolluik, 3-deuren schuifkastenwanden, hor en parketvloer.
Slaapkamer 3 (ca. 14 m2) is gelegen aan de voorzijde van de woning en beschikt over twee handmatig bedienbare markies, hor en parketvloer. Deze slaapkamer beschikt over een naastgelegen inloopkast afgewerkt met vinyl vloer en handmatig bedienbare markies.

Moderne badkamer (ca. 8 m2) met luxe sanitaire voorzieningen zoals een dubbele wastafel met wandmeubel met spiegel en verlichting, hangend tweede toilet, kunststof ligbad en inloopdouche.

BIJZONDERHEDEN:

- Vrijstaande woning in boerderijstijl;
- Goede geïsoleerde woning voorzien van houten kozijnen met isolerende beglazing;
- Verwarming en warmwater middels CV ketel Vaillant 2012;
- Grotendeels van de begane grond is voorzien van natuurstenen vloer met vloerverwarming;
- Sfeervolle gashaard met natuurstenen schouw;
- Centraal stofzuigsysteem;
- Prachtig aangelegde tuin aan het water met vlonder;
- Sproeisysteem aanwezig;
- Geïsoleerd en verwarmde inpandige garage met openslaande garagedeuren;
- Parkeergelegenheid voor twee auto's op eigen oprit;
- Gelegen in de geliefde woonwijk Nieuweland met vele voorzieningen op korte afstand bereikbaar.

MAKELAAR: JAN-HEIN SCHILDERMAN
Lees meer

Kenmerken

Overdracht

Status
verkocht
Aanvaarding
in overleg

Bouw

Soort woning
woonhuis
Soort woonhuis
eengezinswoning
Type woonhuis
vrijstaande woning
Aantal woonlagen
2
Bouwjaar
1995
Onderhoud binnen
goed_tot_uitstekend
Onderhoud buiten
goed_tot_uitstekend
Voorzieningen
rolluiken, buitenzonwering, rookkanaal, dakraam
Isolatie
dubbel glas

Energie

Energielabel
B
Verwarming
cv ketel, vloerverwarming gedeeltelijk, gashaard
Warm water
cv ketel
C.V.-ketel
gas gestookte combi-ketel uit 2012 van Vaillant, eigendom

Oppervlakten en inhoud

Woonoppervlakte
123 m²
Perceeloppervlakte
425 m²
Inhoud
545 m³
Inpandige ruimte oppervlakte
24 m²
Bergruimte oppervlakte
18 m²
Buitenruimte oppervlakte
2 m²

Indeling

Aantal kamers
4

Buitenruimte

Ligging
aan rustige weg, in woonwijk, vrij uitzicht
Tuin
tuin rondom

Garage / Schuur / Berging

Garage
inpandige garage
Parkeergelegenheid
openbaar parkeren, op eigen terrein
Schuur/berging
vrijstaand hout

Foto's

Plattegronden

Downloads

Video's

Locatie

Ook jouw woning succesvol verkopen?

Neem dan contact op

Gratis waardebepaling

Vraag een bezichtiging aan of neem contact met ons op