Cor Kieboomplein 305

3077 MK ROTTERDAM
Verkocht

Omschrijving

Welkom in dit fantastische appartement op de 10e verdieping van appartementencomplex Rubens op De Veranda: een moderne en gewilde wijk in Rotterdam waar water, ontspanning en stadse levendigheid samenkomen. Hier geniet u dagelijks van een panoramisch uitzicht over de Maas en ervaart u de rust van wonen aan het water, met de dynamiek van de stad binnen handbereik.
Het appartement zelf is tot in de puntjes afgewerkt: een lichte living met grote ramen, een open keuken met kookeiland, twee volwaardige slaapkamers en een balkon van ruim 10 meter breed dat uitnodigt om buiten te leven. De afwerking is hoogwaardig met onder andere robuuste houten paneeldeuren, een doorlopende PVC vloer en strak gestucte wanden en plafonds. De eigen parkeerplaats in de parkeerkelder is apart te koop voor € 25.000,- en zorgt ervoor dat u nooit hoeft te zoeken naar een parkeerplek.
De Veranda biedt u het beste van twee werelden: de serene sfeer van de Nieuwe Maas en de gezellige drukte van horeca, bioscoop, bowling, fitness en meer en dat alles op loopafstand. Met de Erasmusbrug en de A16 vlakbij, uitstekende OV-verbindingen én de watertaxi bent u bovendien in no-time in hartje centrum of onderweg naar andere bestemmingen.

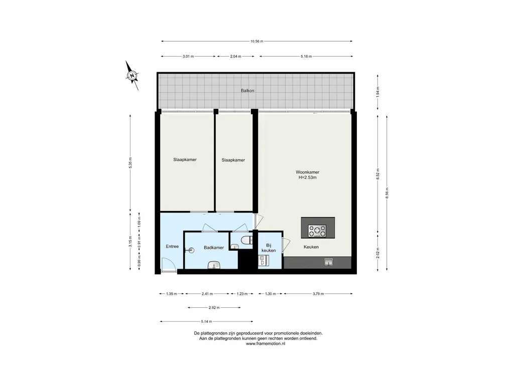
Indeling met indicatieve maten

BEGANE GROND:

Via de centrale entree met brievenbussen en videofooninstallatie bereikt u de liften. In de kelder bevinden zich de berging en de parkeergarage.

10e VERDIEPING:

U betreedt het appartement in de hal, die toegang geeft tot alle vertrekken.

WOONKAMER & KEUKEN
De woonkamer is licht en ruim, met een glazen deur vanuit de hal en een royale schuifpui naar het balkon. Het balkon strekt zich uit over de volledige breedte van de woning, is afgewerkt met houten vlonders en biedt een spectaculair uitzicht over de Maas richting het centrum van Rotterdam.
De open keuken is een ware eyecatcher met een kookeiland inclusief 4-pits inductiekookplaat en RVS afzuigkap. Langs de wand bevindt zich een rechte opstelling met spoelbak en vaatwasser. De keuken is uitgevoerd in wit hoogglans met een donker granieten blad en beschikt over veel bergruimte. Vanuit de keuken is er toegang tot de bijkeuken met aansluitingen voor de wasmachine en droger.

SLAAPKAMERS
Beide slaapkamers liggen aan de balkonzijde, waardoor u ook vanuit de slaapkamers kunt genieten van het uitzicht over de Maas. Ze zijn bereikbaar via schuifdeuren vanuit de hal en bieden ruimte en rust.

BADKAMER
De badkamer is ruim en modern afgewerkt: volledig betegeld met witte wandtegels en donkergrijze vloertegels, voorzien van een royale inloopdouche, vaste wastafel met brede spiegel en een designradiator. Inbouwspots in het plafond zorgen voor sfeervolle verlichting.

- Appartement gelegen op de 10e verdieping met weids uitzicht
- Balkon van ruim 10 meter breed met houten vlonders
- Lichte living met grote ramen en schuifpui
- Open keuken met kookeiland en veel bergruimte
- 2 slaapkamers met uitzicht op de Maas
- Moderne badkamer met inloopdouche en designafwerking
- Robuuste houten paneeldeuren door de hele woning
- PVC vloer door het gehele appartement
- Strak gestucte wanden en plafonds
- Eigen parkeerplaats in de parkeerkelder te koop voor € 25.000,-
- Actieve VvE aanwezig
- Gelegen in de levendige wijk De Veranda met horeca, bioscoop, sport en ontspanning op loopafstand

Makelaar: Marco Bos
Lees meer

Kenmerken

Overdracht

Status
verkocht
Aanvaarding
in overleg

VvE checklist

Inschrijving KVK
Ja
Jaarlijkse vergadering
Ja
Periodieke bijdrage
Ja (270,00 per maand)
Reservefonds aanwezig
Ja
Onderhoudsplan
Ja
Opstalverzekering
Ja

Bouw

Soort woning
appartement
Soort appartement
bovenwoning
Aantal woonlagen
1
Woonlaag
10
Bouwjaar
2005
Open portiek
nee
Onderhoud binnen
goed
Onderhoud buiten
goed
Voorzieningen
mechanische ventilatie, lift, schuifpui

Energie

Energielabel
B
Verwarming
stadsverwarming

Oppervlakten en inhoud

Woonoppervlakte
90 m²
Bergruimte oppervlakte
19 m²
Buitenruimte oppervlakte
20 m²

Indeling

Aantal kamers
3

Buitenruimte

Ligging
aan water, in woonwijk, vrij uitzicht

Garage / Schuur / Berging

Garage
parkeerkelder
Parkeergelegenheid
betaald parkeren, parkeergarage, op eigen terrein
Schuur/berging
inpandig

Foto's

Plattegronden

Downloads

Video's

Locatie

Ook jouw woning succesvol verkopen?

Neem dan contact op

Gratis waardebepaling

Vraag een bezichtiging aan of neem contact met ons op