Drontermeer 29

2993 RC BARENDRECHT
Verkocht

Omschrijving

Wat een prachtige hoekwoning, gelegen in de gewilde wijk Meerwede mogen wij hier aan u presenteren. Deze woning is in 2020 op vele punten vernieuwd en biedt u het comfort van modern wonen. De ruime, lichte woonkamer is voorzien van een fraaie plavuizenvloer met vloerverwarming, terwijl de moderne keuken en badkamer zorgen voor een luxe afwerking. Met vier slaapkamers en een aparte ruimte voor de wasmachine, droger en CV-installatie is er meer dan genoeg ruimte voor het hele gezin. Daarnaast is de woning uitgerust met maar liefst 9 zonnepanelen, wat bijdraagt aan een energiezuinige levensstijl.
De achtertuin met een gezellige overkapping biedt de ideale plek om te ontspannen of gezellig te eten met vrienden en familie. De woning is uitstekend gelegen, vlakbij winkelcentrum Carnisse Veste, scholen, kinderopvang en openbaar vervoer. Dit alles maakt het tot een ideale plek om te wonen voor gezinnen die op zoek zijn naar comfort, ruimte en een centrale ligging.

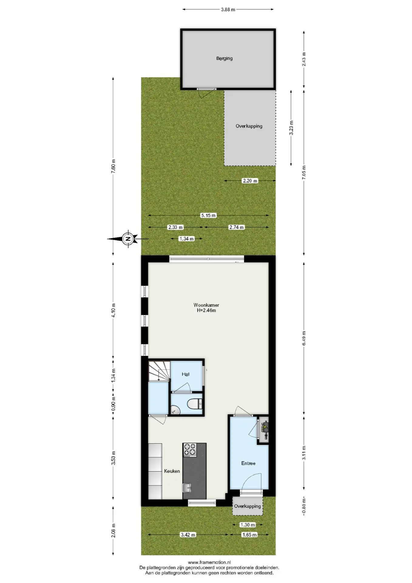
Indeling met indicatieve maten:

BEGANE GROND:
De begane grond van deze woning is stijlvol en functioneel ingericht, met een doordachte indeling en moderne afwerkingen. Bij binnenkomst komt u in de hal met de meterkast(2020), die toegang biedt tot de woonkamer en de keuken.
De woonkamer (ca. 28 m²) bevindt zich aan de achterzijde van de woning en heeft een prachtige schuifpui die toegang geeft tot de tuin, waardoor binnen en buiten naadloos in elkaar overgaan. Het plafond is sfeervol afgewerkt met inbouwspots en indirecte verlichting, wat de ruimte een warme, moderne uitstraling geeft.

Aan de voorzijde van de woning bevindt zich de open keuken (ca. 12 m²), die een echt middelpunt vormt. Het kook- en spoeleiland is voorzien van een eetbar voor twee personen, ideaal voor een gezellig ontbijt of een informele maaltijd. De kastenwand is uitgerust met diverse hoogwaardige inbouwapparatuur, waaronder een oven, een espressoapparaat, een koel/vriescombinatie en een warmhoudlade. Het kookeiland is voorzien van een Bora inductiekookplaat met geïntegreerde afzuiging, een vaatwasser en een Quooker kraan. De geïntegreerde stopcontacten in het aanrechtblad dragen bij aan het strakke en praktische design. Het geheel is uitgevoerd in wit hoogglans, gecombineerd met een donker composiet aanrechtblad, wat zorgt voor een luxe en tijdloze uitstraling. Daarnaast is er in de keuken een praktische trapkast met veel opbergruimte.

Vanuit de keuken heeft u middels een zwart glazen schuifdeur toegang tot de tussenhal. Hier vindt u de trap naar de eerste verdieping en de toiletruimte. Het toilet is volledig betegeld in moderne wit- en grijstinten en is uitgerust met een hangend toilet met ingebouwd bidet en een fonteintje.

De begane grond is volledig betegeld met grote grijze vloertegels en beschikt over vloerverwarming, wat zorgt voor een aangename temperatuur en een eigentijdse uitstraling door de gehele ruimte.

De achtertuin is in 2022 vernieuwd en onderhoudsvriendelijk aangelegd met sierbestrating en een houten overkapping.

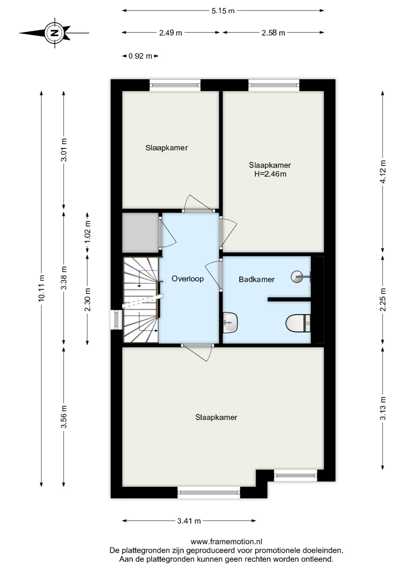
EERSTE VERDIEPING:
Overloop met toegang tot de slaapkamers, de badkamer en de ruime bergkast.

Slaapkamer 1 (ca. 17 m²) gelegen aan de voorzijde van de woning
Slaapkamer 2 (ca. 11 m²) gelegen aan de achterzijde van de woning
Slaapkamer 3 (ca. 7 m²) gelegen aan de achterzijde van de woning

De luxe en fraai afgewerkte badkamer (ca. 6 m²) is echt een plaatje om te zien. Met een riante inloopdouche, een wastafelmeubel met spiegelkast en verlichting en een tweede hangend toilet met ingebouwde bidet functie heeft u hier alles voor uw eigen wellness. De badkamer is geheel betegeld met een grote grijze wand/vloertegel in combinatie met tegels in houtlook.

TWEEDE VERDIEPING:
Overloop met toegang tot de slaapkamer en de aparte ruimte met de aansluiting voor de wasmachine en de droger, de opstelling voor de CV ketel (2020) en een wastafelmeubel met warm en koud stromend water. Tevens is hier de omvormer voor de zonnepanelen geplaatst.

Slaapkamer 4 (ca. 17 m²) is gelegen aan de voorzijde van de woning en heeft een extra hoog plafond en elektrische rolluiken.

- Fraai afgewerkte hoek eengezinswoning met speelveldje aan de voorzijde
- 4 Slaapkamers verdeeld over de eerste en tweede verdieping
- Alle slaapkamers en keukenraam zijn voorzien van elektrisch bedienbare rolluiken
- Vloerverwarming aanwezig op de begane grond
- Schilderwerk binnenwanden grotendeels uitgevoerd in 2025
- Woning grotendeels gemoderniseerd in 2020
- 9 Zonnepanelen geplaatst in 2022 (opbrengst ca. 385 WP per stuk)
- Gelegen in de wijk Meerwede met alle openbare voorzieningen in de nabije omgeving

Makelaar: Marco Bos
Lees meer

Kenmerken

Overdracht

Status
verkocht
Aanvaarding
in overleg

Bouw

Soort woning
woonhuis
Soort woonhuis
eengezinswoning
Type woonhuis
hoekwoning
Aantal woonlagen
3
Bouwjaar
1999
Onderhoud binnen
goed
Onderhoud buiten
goed
Voorzieningen
rolluiken, schuifpui, zonnepanelen

Energie

Energielabel
A
Verwarming
cv ketel, vloerverwarming gedeeltelijk
C.V.-ketel
combi-ketel

Oppervlakten en inhoud

Woonoppervlakte
133 m²
Perceeloppervlakte
135 m²
Inhoud
431 m³
Bergruimte oppervlakte
9 m²
Buitenruimte oppervlakte
1 m²

Indeling

Aantal kamers
5

Buitenruimte

Ligging
in woonwijk, vrij uitzicht

Garage / Schuur / Berging

Garage
geen garage
Parkeergelegenheid
openbaar parkeren
Schuur/berging
vrijstaand hout

Foto's

Plattegronden

Downloads

Video's

Locatie

Ook jouw woning succesvol verkopen?

Neem dan contact op

Gratis waardebepaling

Vraag een bezichtiging aan of neem contact met ons op