Hoogvlietsekerkweg 64

3194 AM HOOGVLIET ROTTERDAM
Verkocht onder voorbehoud
verkocht onder voorbehoud

Omschrijving

Wat een prachtige kans!
Deze karakteristieke 2-onder-1 kapwoning ligt aan een rustige, autoluwe straat met uitsluitend bestemmingsverkeer. Hier woon je in alle rust en geniet je tegelijkertijd van het levendige buitenleven: direct grenzend aan het Valckesteynse Bos, waar je eindeloos kunt wandelen en fietsen. Alsof je een groen natuurgebied als achtertuin hebt!
De woning staat op een royaal perceel van 228 m² eigen grond en combineert ruimte, comfort en een fantastische ligging. Met een moderne keuken (vernieuwd in 2023), drie slaapkamers, een serre en een heerlijke tuin is dit een woning die in alle opzichten verrast. Hier ervaar je de perfecte balans tussen landelijke rust en het gemak van voorzieningen in de buurt.
Of je nu een gezin hebt, een stel bent dat van ruimte houdt, of gewoon graag buiten leeft, dit huis voelt direct als een thuis.

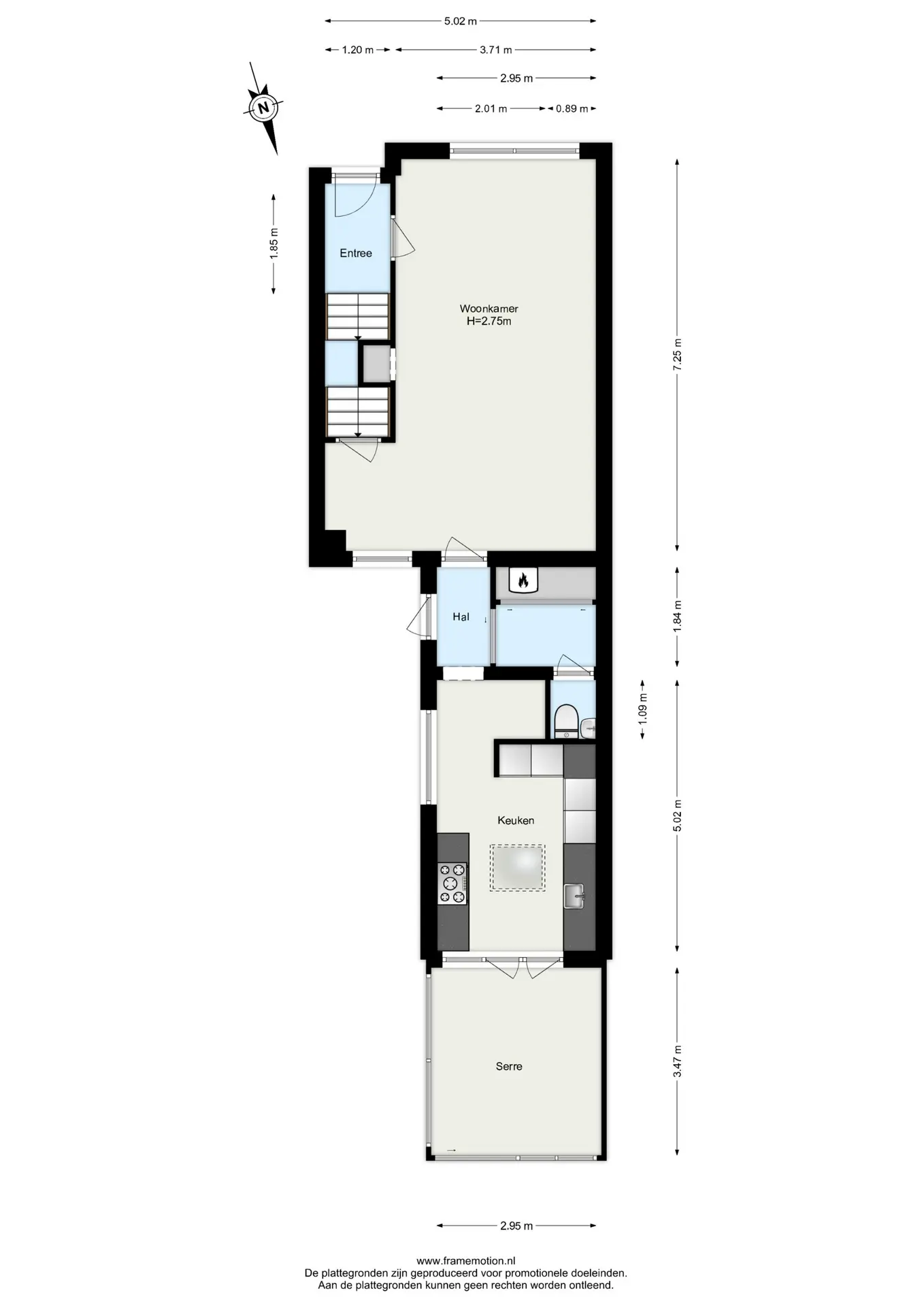
Indeling met indicatieve maten

BEGANE GROND:

Je betreedt de woning via de hal met trapopgang naar de eerste verdieping. Aan de voorzijde bevindt zich de sfeervolle woonkamer, die toegang biedt tot de provisiekelder. Achterin de woning vind je de uitbouw met een aparte ruimte, waar de CV-ketel en de aansluiting voor wasmachine en droger zijn geplaatst. Hier bevindt zich ook het toilet, uitgevoerd in een neutrale grijs-witte kleurstelling met duoblok en fonteintje.
De keuken (2023) is een absolute blikvanger. Met een combinatie van hoek- en rechte opstelling is deze uitgerust met een inductiekookplaat, RVS afzuigkap, spoelbak, vriezer, combi-oven, hetelucht oven met grillfunctie en vaatwasser. Een nis biedt bovendien ruimte voor een gezellige coffeecorner. De gietvloer en strak gestucte wanden en plafonds geven de keuken een moderne en stijlvolle uitstraling.

Via openslaande deuren vanuit de keuken bereik je de aluminium serre, voorzien van ingebouwde verlichting, een Portugese tegelvloer en een grote glazen schuifpui naar de tuin, een heerlijke plek om elk seizoen te genieten van licht en uitzicht.

ACHTERTUIN:

De tuin is royaal en biedt volop privacy. Met sierbestrating, groene beplanting en een vrijstaande berging heb je hier een fijne buitenruimte. De tuin is tevens bereikbaar via de zijkant van de woning. Achter de tuin ligt het uitgestrekte Valckesteynse Bos, een uitzicht en omgeving die je elke dag een vakantiegevoel geven.

EERSTE VERDIEPING:

Via de overloop bereik je drie slaapkamers en de badkamer. Ook is er een handige vaste kast aanwezig.

Slaapkamer 1: ca. 8 m², gelegen aan de achterzijde, met vaste kast
Slaapkamer 2: ca. 6 m², eveneens gelegen aan de achterzijde
Slaapkamer 3: ca. 9 m², gelegen aan de voorzijde

De badkamer (ca. 6 m²) is volledig betegeld in een lichte kleur en voorzien van een ligbad, vaste wastafel en een tweede toilet.

Dankzij de dakkapellen aan zowel de voor- als achterzijde is deze verdieping extra ruim en licht.

- Karakteristieke 2-onder-1 kapwoning
- Gelegen aan een autoluwe straat met bestemmingsverkeer
- Direct grenzend aan het Valckesteynse Bos voor eindeloos wandelen en fietsen
- Ruim perceel van 228 m² eigen grond
- Moderne keuken vernieuwd in 2023
- Vloerverwarming in de keuken en het toilet
- Aluminium serre met Portugese tegelvloer en schuifpui naar de tuin
- Verrassend ruime achtertuin met veel privacy
- Drie slaapkamers en een lichte badkamer met ligbad
- Voor- en achterzijde voorzien van een dakkapel
- Vrijstaande berging en achterom aanwezig
- Gelegen op eigen grond
- Op korte afstand van diverse winkels, scholen, uitvalswegen en openbaar vervoer

Makelaar: Marco Bos
Lees meer

Kenmerken

Overdracht

Vraagprijs
€ 365.000,- k.k.
Status
verkocht onder voorbehoud
Aanvaarding
in overleg

Bouw

Soort woning
woonhuis
Soort woonhuis
eengezinswoning
Type woonhuis
twee onder een kapwoning
Aantal woonlagen
2
Bouwjaar
1900
Onderhoud binnen
redelijk_tot_goed
Onderhoud buiten
redelijk_tot_goed
Isolatie
gedeeltelijk dubbel glas

Energie

Energielabel
E
Verwarming
cv ketel, vloerverwarming gedeeltelijk
C.V.-ketel
gas gestookte combi-ketel uit 2023, eigendom

Oppervlakten en inhoud

Woonoppervlakte
93 m²
Perceeloppervlakte
228 m²
Inhoud
374 m³
Inpandige ruimte oppervlakte
12 m²
Bergruimte oppervlakte
4 m²

Indeling

Aantal kamers
4

Buitenruimte

Ligging
aan bosrand, aan rustige weg, vrij uitzicht
Tuin
achtertuin met een oppervlakte van 76 m²

Garage / Schuur / Berging

Garage
geen garage
Parkeergelegenheid
openbaar parkeren

Plattegronden

Downloads

Video's

Locatie

Marco Bos

Interesse in deze woning?

Marco Bos

Vraag een bezichtiging aan

Vraag een bezichtiging aan of neem contact met ons op