Hordijk 197K001

3079 DG ROTTERDAM
Te koop
€ 425.000,- k.k.

Omschrijving

Welkom aan de sfeervolle Hordijk, een geliefde en rustige locatie in de stad met een typisch dorps gevoel. Deze charmante en ruime jaren ’30 woning combineert karakter en authenticiteit met volop mogelijkheden voor een koper die graag zijn eigen droomhuis wil realiseren. De woning beschikt over maar liefst
128 m² woonoppervlakte, compleet met een souterrain van nog eens 72 m², waardoor er talloze opties ontstaan voor bijvoorbeeld een hobbyruimte, kantoor of extra slaapkamers.
De eigen grond, een flink perceel met een diepe tuin op het noordoosten, biedt volop rust, groen en privacy.
De diepe tuin van bijna 17 meter diep is een groene oase waar u heerlijk kunt genieten van de rust en het buitenleven. Een gedeelte van de tuin is gehuurd van de gemeente Rotterdam. Achter de woning verscholen vindt u een park met wandel mogelijkheden, perfect voor ontspanning en recreatie. De locatie aan de Hordijk kenmerkt zich door haar groene, rustige sfeer, terwijl voorzieningen zoals winkels, scholen en openbaar vervoer zich op loopafstand bevinden. Kortom, een ideale plek voor gezinnen, starters en iedereen die zoekt naar ruimte, rust en potentie.

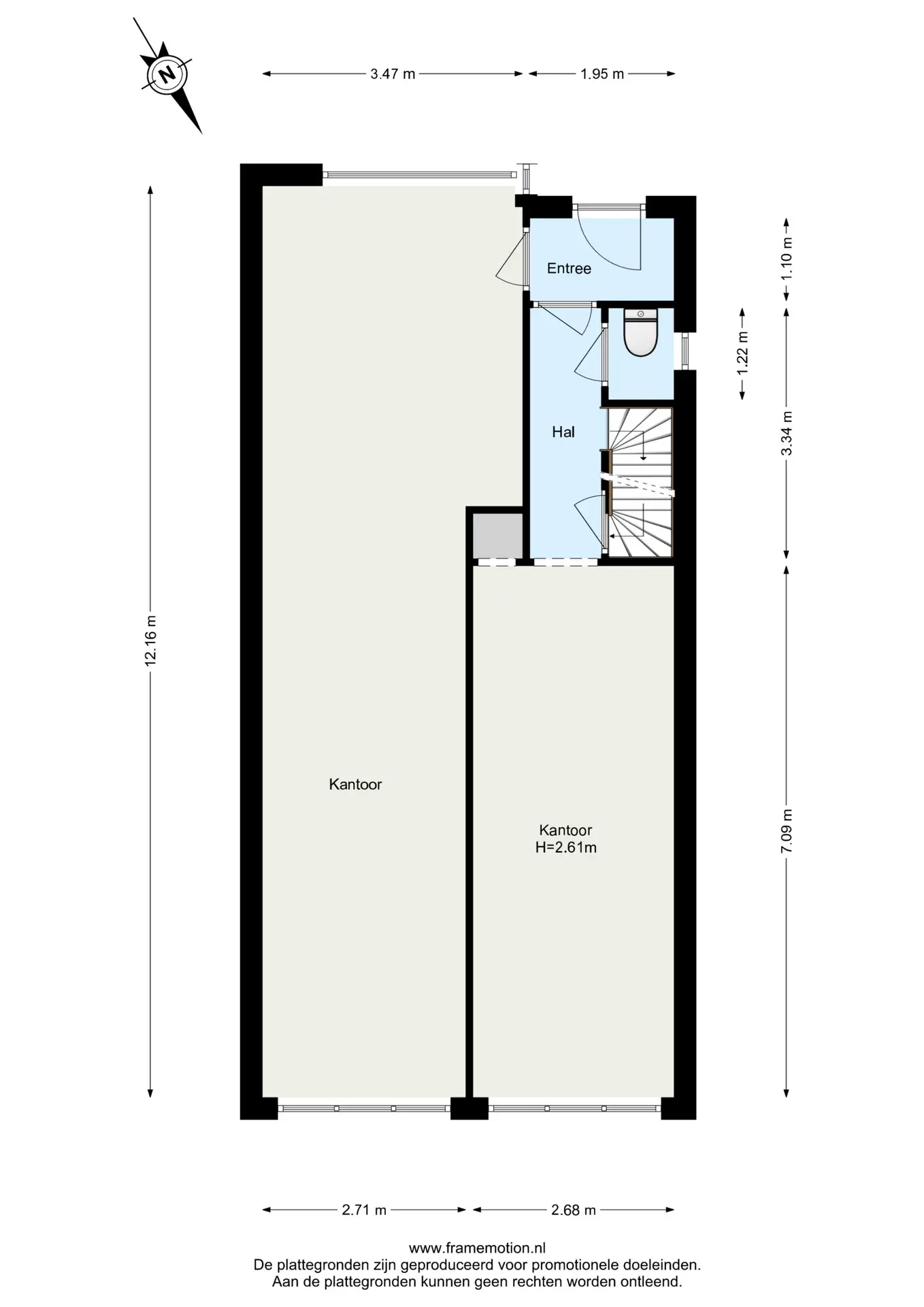
Indeling met indicatieve maten

BEGANE GROND:

De woning wordt betreden via de entree op dijkniveau, waar de hal u welkom heet. Vanuit hier heeft u toegang tot het toilet, de trap naar de eerste verdieping en het souterrain. Aan de tuinzijde bevindt zich een multifunctionele ruimte, voorzien van grote raampartijen. Deze ruimte biedt vele mogelijkheden: het kan worden omgebouwd tot extra slaapkamer, kantoor, of worden geïntegreerd als woonkamer met uitzicht op de tuin.
De doorzonkamer, die ideaal is voor gebruik als woonkamer of eventueel slaapkamers, biedt een fraaie blik op de tuin en het park achter de woning. De ruimte kan worden opgesplitst in meerdere kamers, afhankelijk van uw wensen, waardoor u de indeling compleet naar eigen inzicht kunt aanpassen.

EERSTE VERDIEPING:

De eerste verdieping wordt gekenmerkt door een ruime overloop, die toegang biedt tot de badkamer en de huidige woonkamer. De doorzonwoonkamer beschikt over grote raampartijen aan zowel de voor- als achterzijde, waardoor de ruimte veel lichtinval en een open, luchtige sfeer krijgt.
De open keuken aan de tuinzijde is voorzien van een rechte opstelling met onder andere een dubbele koelkast en vaatwasser. Het sfeervolle balkenplafond geeft de ruimte veel karakter en warmte. Via een vaste trap vanaf de overloop bereikt u de vide, een unieke extra ruimte die u kunt gebruiken als kantoor, speelkamer of slaapkamer. Met een dakraam zorgt deze ruimte voor nog meer lichtinval en uitzicht.
De verdieping biedt volop potentieel voor het creëren van extra ruimtes, bijvoorbeeld door het plaatsen van een scheidingswand of het aanpassen van de indeling.

SOUTERRAIN:

Het souterrain is bereikbaar via een vaste trap vanaf de dijk en biedt maar liefst 72 m² aan extra ruimte. Hier bevinden zich meerdere ruimtes die voor diverse doeleinden geschikt zijn, zoals opslag, hobbyruimte, fitness of een extra slaap- en werkgedeelte. Een bijzonder pluspunt is de aanwezige sauna, ideaal voor ontspanning thuis.
Het souterrain beschikt over een eigen keukenblok en achteringang, waardoor het goed te gebruiken is als zelfstandige studio, kantoor of gastenverblijf. Daarnaast vindt u aansluitingen voor wasmachine en droger, een aparte douchecabine en extra ruimte te gebruiken als opslag.

ACHTERTUIN:

De grote tuin achter de woning, bijna 17 meter diep, biedt veel groen en privacy. Hier kunt u eindeloos genieten van de rust, tuinieren, barbecues of de kinderen laten spelen. De privacy wordt versterkt doordat de tuin op het noordoosten ligt, zodat u in de middag en avond heerlijk van de zon kunt genieten. Een gedeelte van de tuin (66 m²) is huurgrond van de gemeente Rotterdam.

Veel mogelijkheden voor een koper met visie
Deze woning biedt een schitterende basis voor invulling en verbouwing naar wens. Of u nu op zoek bent naar een ruime gezinswoning met volop tuin, een woning met kantoor of praktijkruimte, of een woning die u volledig eigen kunt maken – deze woning biedt het allemaal. De combinatie van karakter, ruimte, locatie en veel potentie maakt dit huis tot een unieke kans.

- Jaren ’30 charme met karakter en authenticiteit
- Woonoppervlakte van 128 m² plus een veelzijdig souterrain van 72 m²
- Ruime, diepe tuin van bijna 17 meter op het noordoosten, veel privacy en groen
- Veel ruimte voor eigen invulling: hobbyruimte, kantoor of extra slaapkamers mogelijk
- Sfeervolle doorzonkamer met grote raampartijen en uitzicht op de tuin en park
- Grotendeels voorzien van kunststof kozijnen met dubbel glas
- Unieke vide boven de keuken voor kantoor, speelkamer of slaapkamer
- Souterrain met eigen keuken en achteringang: ideaal als studio, kantoor of gastenverblijf
- Rustige, groene ligging in geliefde woonstraat met alle voorzieningen op loopafstand
- Volop potentieel voor verbouwing naar wens, perfect voor gezinnen, starters of klusliefhebbers

Makelaar: Marco Bos
Lees meer

Kenmerken

Overdracht

Vraagprijs
€ 425.000,- k.k.
Status
beschikbaar
Aanvaarding
in overleg

Bouw

Soort woning
woonhuis
Soort woonhuis
eengezinswoning
Type woonhuis
hoekwoning
Aantal woonlagen
3
Bouwjaar
1932
Onderhoud binnen
goed
Onderhoud buiten
goed
Voorzieningen
sauna
Isolatie
grotendeels dubbelglas

Energie

Energielabel
F
Verwarming
cv ketel
C.V.-ketel
combi-ketel

Oppervlakten en inhoud

Woonoppervlakte
128 m²
Perceeloppervlakte
150 m²
Inhoud
630 m³
Inpandige ruimte oppervlakte
72 m²
Buitenruimte oppervlakte
27 m²

Indeling

Aantal kamers
6

Buitenruimte

Ligging
aan park, aan rustige weg, vrij uitzicht
Tuin
achtertuin met een oppervlakte van 119 m² en is gelegen op het noordoosten

Garage / Schuur / Berging

Garage
geen garage
Parkeergelegenheid
betaald parkeren, parkeervergunningen

Plattegronden

Downloads

Video's

Locatie

Marco Bos

Interesse in deze woning?

Marco Bos

Vraag een bezichtiging aan

Vraag een bezichtiging aan of neem contact met ons op