Palissanderhout 78

2994 HK BARENDRECHT
Verkocht

Omschrijving

Ruim 3-kamerappartement met vrij uitzicht, royaal terras, eigen parkeerplaats en berging

Barendrecht – Vrijenburg | Residence Montana

Op een rustige en groene locatie in de populaire wijk Vrijenburg in Barendrecht, bevindt zich dit goed onderhouden en ruime 3-kamerappartement in het moderne appartementencomplex Residence Montana. Gelegen op de derde verdieping geniet u hier van een prachtig vrij uitzicht, een royaal terras én het gemak van een eigen parkeerplaats in de ondergelegen parkeergarage. Ook beschikt u over een praktische privéberging, ideaal voor het stallen van fietsen of het opbergen van seizoensspullen.

De ligging is bijzonder gunstig: op korte afstand vindt u het winkelcentrum Carnisse Veste, de tramverbinding naar Rotterdam en het recreatiegebied de Oude Maas. Deze combinatie van rust, groen en goede bereikbaarheid maakt het appartement uitermate geschikt voor wie comfortabel en zorgeloos wil wonen.

Indeling van het appartement
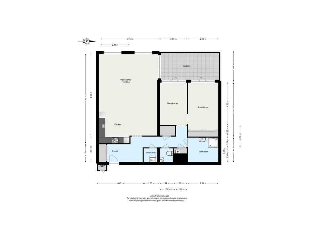
Via de representatieve centrale entree op de begane grond betreedt u het complex, waar zich het bellentableau, de brievenbussen, een lift en het trappenhuis bevinden. Ook is hier toegang tot de parkeergarage waar uw eigen parkeerplaats zich bevindt, evenals de afgesloten privéberging.

Eenmaal aangekomen op de derde verdieping betreedt u het appartement via een ruime hal met garderobekast en een handige bergkast. De lichte en ruime woonkamer is voorzien van grote raampartijen die zorgen voor veel natuurlijk licht en een weids uitzicht. De schuifpui geeft toegang tot het ruime terras, waar u heerlijk buiten kunt zitten met volop privacy.

De open keuken in hoekopstelling is voorzien van diverse inbouwapparatuur, waaronder een koelkast, vrieskast, 4-pits inductiekookplaat, combimagnetron en een heteluchtoven. De houten keuken heeft een donker natuurstenen aanrechtblad. De vloer in de keuken is afgewerkt met stijlvol Belgisch hardsteen, wat zorgt voor een luxe uitstraling. In de rest van het appartement ligt een karakteristieke kloostervloer die bijdraagt aan de warme sfeer.

De hoofdslaapkamer is toegankelijk via de tweede slaapkamer, die uitstekend dienst kan doen als kleedkamer of werkkamer. Vanuit beide kamers is er directe toegang tot het terras, wat zorgt voor een prettige verbinding met buiten.

De badkamer is keurig afgewerkt met moderne betegeling, een strak spanplafond, een ruime inloopdouche en een wastafelmeubel. Er is een aansluiting aanwezig voor een tweede toilet.

Daarnaast is er een aparte natte ruimte met aansluitingen voor de wasmachine en droger, evenals een aansluiting op de mechanische ventilatie.

Bijzonderheden op een rij:

Woonoppervlakte met veel licht, lucht en ruimte

Ruim terras met vrij uitzicht, toegankelijk vanuit woonkamer én slaapkamers

Eigen parkeerplaats in de afgesloten parkeergarage

Afgesloten privéberging op de begane grond

Voorzien van lift en nette algemene ruimten

Rustige ligging in een groene, waterrijke omgeving

Dicht bij winkels, openbaar vervoer en natuur

Bent u op zoek naar een ruim, licht en comfortabel appartement met een rustige ligging en alle voorzieningen binnen handbereik? Dan is dit appartement in Residence Montana absoluut het bezichtigen waard.
Lees meer

Kenmerken

Overdracht

Status
verkocht
Aanvaarding
in overleg

VvE checklist

Inschrijving KVK
Ja
Jaarlijkse vergadering
Ja
Periodieke bijdrage
Ja (170,10 per maand)
Reservefonds aanwezig
Ja
Onderhoudsplan
Ja
Opstalverzekering
Ja

Bouw

Soort woning
appartement
Soort appartement
portiekflat
Aantal woonlagen
1
Woonlaag
3
Bouwjaar
2008
Open portiek
nee
Onderhoud binnen
goed
Onderhoud buiten
goed

Energie

Energielabel
A
Verwarming
cv ketel
Warm water
cv ketel
C.V.-ketel
gas gestookte combi-ketel uit 2009 van Intergas

Oppervlakten en inhoud

Woonoppervlakte
108 m²
Bergruimte oppervlakte
22 m²
Buitenruimte oppervlakte
16 m²

Indeling

Aantal kamers
4

Buitenruimte

Ligging
aan water, in woonwijk

Garage / Schuur / Berging

Garage
inpandige garage
Parkeergelegenheid
parkeergarage
Schuur/berging
inpandig

Foto's

Plattegronden

Downloads

Video's

Locatie

Ook jouw woning succesvol verkopen?

Neem dan contact op

Gratis waardebepaling

Vraag een bezichtiging aan of neem contact met ons op