Prins Hendrikstraat 17

2991 BP BARENDRECHT
Verkocht

Omschrijving

Gerenoveerde jaren-’30 Woning in Barendrecht (Energielabel B) met uitbouw, dakkapel en diepe achtertuin

Barendrecht, Oranjewijk

In het sfeervolle Oranjewijk in Barendrecht wacht deze karaktervolle, nagenoeg volledig gerenoveerde jaren-’30 woning op nieuwe bewoners die op zoek zijn naar de perfecte mix van nostalgie, comfort en duurzaamheid. Authentieke details zoals de glas-in-lood ramen in de erker gaan naadloos samen met een doordachte modernisering, zodat je zonder grote verbouwing kunt genieten van je nieuwe woning.

Gelegen in een groene, kindvriendelijke wijk, heeft deze woning alles binnen handbereik: je loopt zo naar het NS-station, de buurtsuper, basisscholen, de Oranjespeeltuin of de tennisvereniging. De levendige omgeving combineert rust met reële functionaliteit, wat bij uitstek aansluit bij wie comfort, sfeer én bereikbaarheid waarderen.

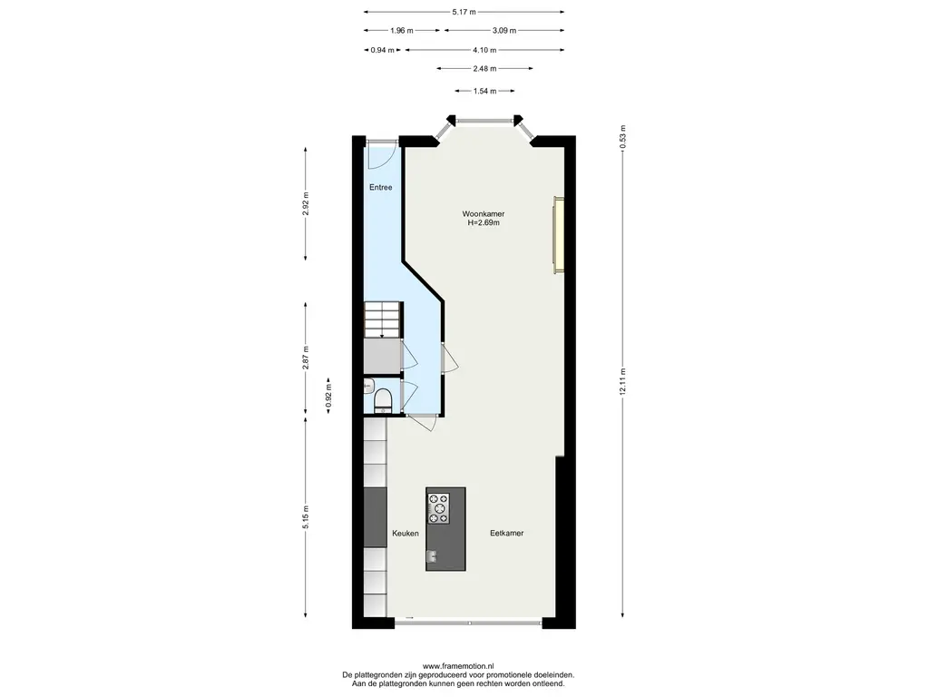
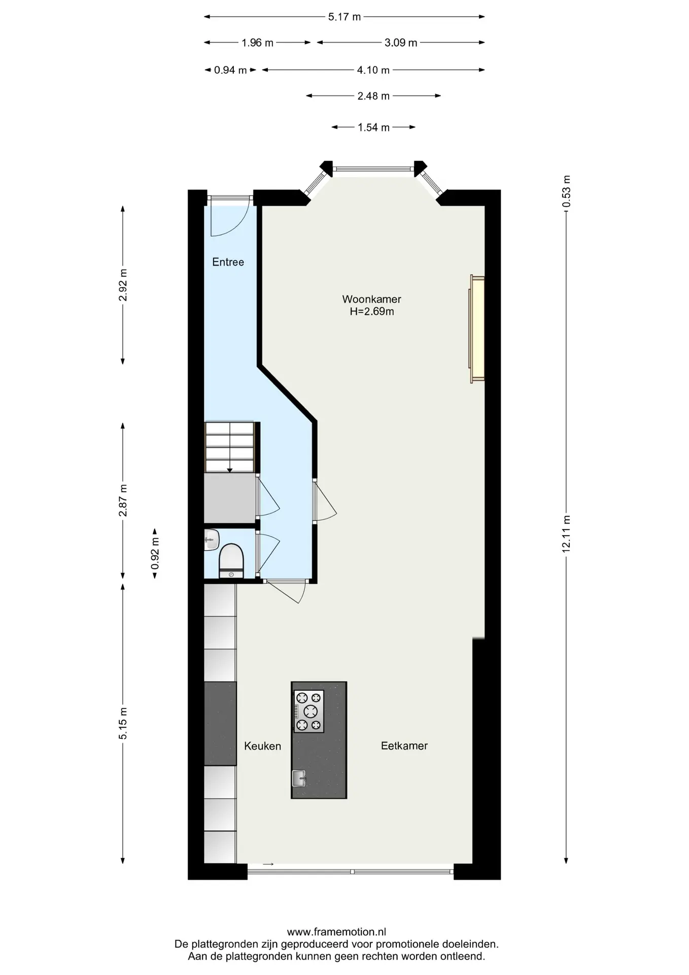
Bij binnenkomst valt direct de warme ontvangst op: de mooie entree, verzorgde trap met praktische trapkast en een stijlvolle toiletruimte met zwevend toilet, fonteintje en verfijnd tegel- én stucwerk zorgen voor een ingetogen maar directe klasse. Betreed je de woonkamer, dan omarmt de originele erker je met haar lichtinval en sfeer. De wanden en het plafond zijn strak gestuukt, de vloer biedt onder je voeten het aangename comfort van pvc met vloerverwarming.

De uitbouw van zo’n vier meter brengt extra ruimte en licht, en vormt het hart van de woning: een zwarte, luxe keuken met marmerlook werkblad, uitgerust met alles wat een gepassioneerde hobbykok zich kan wensen – van grote koel- en vrieskast tot hete-lucht- en combi-oven, warmhoudlade, vaatwasser, Quooker en geïntegreerde Bora-afzuiging in de inductie kookplaat. Dankzij de brede schuifpui vloeit de woonkamer over in de diepe achtertuin, klaar om verder te tuinieren of deze zomeravonden buiten te vieren – de achtertuin is klaar voor een transformatie.

Op de eerste verdieping vind je drie slaapkamers, ieder afgewerkt met laminaat en paneeldeuren. De ouderslaapkamer, gelegen aan de voorzijde, straalt sfeer uit dankzij een open kastenwand, sfeervolle elektrische haard en sierlijk gestucte wanden. Ook de werkkamer is licht en verzorgd, ideaal voor wie thuis werkt of studeert. Aan de achterzijde van de woning is de derde ruime, strak afgewerkte slaapkamer.

De badkamer voelt alsof je in een boutiquehotel staat: royaal met een ligbad én aparte douche, een houtlook wastafelmeubel met dubbele waskommen, goudkleurige kranen, zwevend toilet en praktische nisjes. Alles nodigt uit om even helemaal tot rust te komen.

Bovenop dit al rijke woonplaatje komt de zolder, bereikbaar via een vaste trap, waar een royale dakkapel is geplaatst; kunststof kozijnen bieden comfort en duurzaamheid. Achter knieschotten is ruimte voor opslag, terwijl de recente vernieuwde CV-ketel en omvormer van de zonnepanelen deze woning energiebewust maken.

Deze woning is in 2023 van grotendeels vernieuwd en geïsoleerd, voorzien van een moderne Intergas CV-ketel, vloerverwarming, nieuwe keuken, badkamer, toilet, en de uitbouw. In 2024 zijn rolluiken op zolder toegevoegd, terwijl 12 zonnepanelen, vloerisolatie, dakisolatie, hoogrendements- en dubbele glas zorgen voor energielabel B.

Wonen in karakter, klaar voor nu!

Deze woning biedt de charme van het verleden met het wooncomfort van nu. Authentieke elementen zoals glas-in-lood en de erker zijn met zorg bewaard en gerestaureerd, waardoor elke kamer warmte en karakter uitstraalt.
Tegelijkertijd zijn de afwerkingen, installaties en isolatie volledig up-to-date, waardoor je duurzaam, energiezuinig én in stijl kunt leven – zonder grote verbouwing.



Bijzonderheden:

- Jaren 30- woning met energielabel B
- Waanzinnig uitgebouwde en verbouwde gezinswoning met hoogwaardig afwerkingsniveau
- Diepe achtertuin met ligging op het oosten, door de diepte van de tuin is er voldoende zon in de tuin
- Woning is gelegen in een van de leukste straten van de Oranjewijk
- Openbare voorzieningen in de directe omgeving
- Woning is in 2023 grotendeels verbouwd en grootscheeps gerenoveerd
- het woonoppervlak is exclusief de zolderruimte
- Er zijn 12 zonnepanelen geplaatst (eigendom)
Lees meer

Kenmerken

Overdracht

Status
verkocht
Aanvaarding
in overleg

Bouw

Soort woning
woonhuis
Soort woonhuis
eengezinswoning
Type woonhuis
tussenwoning
Aantal woonlagen
3
Bouwjaar
1939
Onderhoud binnen
goed_tot_uitstekend
Onderhoud buiten
goed_tot_uitstekend

Energie

Energielabel
B
Verwarming
cv ketel, vloerverwarming gedeeltelijk, elektrische verwarming
Warm water
cv ketel
C.V.-ketel
combi-ketel

Oppervlakten en inhoud

Woonoppervlakte
108 m²
Perceeloppervlakte
191 m²
Inhoud
456 m³
Inpandige ruimte oppervlakte
14 m²

Indeling

Aantal kamers
5

Buitenruimte

Ligging
in woonwijk

Garage / Schuur / Berging

Garage
geen garage
Parkeergelegenheid
openbaar parkeren

Foto's

Plattegronden

Downloads

Video's

Locatie

Ook jouw woning succesvol verkopen?

Neem dan contact op

Gratis waardebepaling

Vraag een bezichtiging aan of neem contact met ons op