Riedermeet 47

2993 XL BARENDRECHT
Verkocht

Omschrijving

Goed onderhouden tussenwoning met berging en zonnige achtertuin op het zuidwesten!

In een groene en kindvriendelijke woonomgeving in Barendrecht staat deze verzorgde tussenwoning aan de Riedermeet 47. De woning beschikt over een lichte, tuingerichte woonkamer met parketvloer en een moderne keuken uit 2022 aan de voorzijde. Op de eerste en tweede verdieping zijn in totaal drie slaapkamers te vinden en de nette sanitaire voorzieningen maken het geheel compleet. De achtertuin ligt op het zonnige zuidwesten en biedt volop privacy. Hier geniet u de hele dag door van de zon. Bovendien is de tuin voorzien van een achterom en een vrijstaande berging, ideaal voor fietsen en tuingereedschap. De ligging is zeer gunstig. De wijk ligt in een rustige en groene buurt met scholen, winkels, sportvoorzieningen en openbaar vervoer op korte afstand. Daarnaast is er een uitstekende verbinding naar Rotterdam, zowel met de auto als met het openbaar vervoer. Ook de uitvalswegen zijn snel bereikbaar. Riedermeet 47 biedt u een complete en verzorgde woning op een aantrekkelijke locatie waar u zo kunt intrekken!

INDELING MET INDICATIEVE MATEN:

BEGANE GROND

Voortuin voorzien van bestrating en beplanting.

Entree, hal met meterkast, trap naar de 1e verdieping, toiletruimte voorzien van een duoblok en fonteintje. De toiletruimte is gedeeltelijk betegeld in een lichte kleurstelling. De hal is afgewerkt met tegelvloer. Via een glazen deur heeft u toegang tot de woonkamer.

Lichte tuingerichte woonkamer (ca. 23 m2) voorzien van een lichte parketvloer en een handige trapkast. Middels openslaande deuren en een loopdeur met hor heeft u toegang tot de zonnige achtertuin. De woonkamer biedt een aangename natuurlijke lichtinval.

De moderne open keuken (ca. 8 m2) is geplaatst in 2022 en is gelegen aan de voorzijde van de woning. Deze complete keuken is uitgevoerd in een L-opstelling en is voorzien van diverse inbouwapparatuur zoals een koelkast, vrieskast, inductie kookplaat, afzuigkap, combimagnetron en een vaatwasser. Tevens is de keuken voorzien van een carrouselkast en een enkele spoelbak. Het geheel is uitgevoerd in een donkergrijze kleur en afgewerkt met een kunststof lichtgrijs aanrechtblad en wand, sfeerverlichting en parketvloer.

De achtertuin ligt op het zonnige zuidwesten en biedt volop privacy. Hier geniet u de hele dag door van de zon. Bovendien is de tuin voorzien van een achterom en een vrijstaande berging, ideaal voor fietsen en tuingereedschap. Tevens is de achtertuin voorzien van bestrating, beplanting, achterom, buitenkraan, elektrisch bedienbaar zonnescherm en stopcontacten.

Houten berging (ca. 8 m2) voorzien van elektra en stopcontacten.

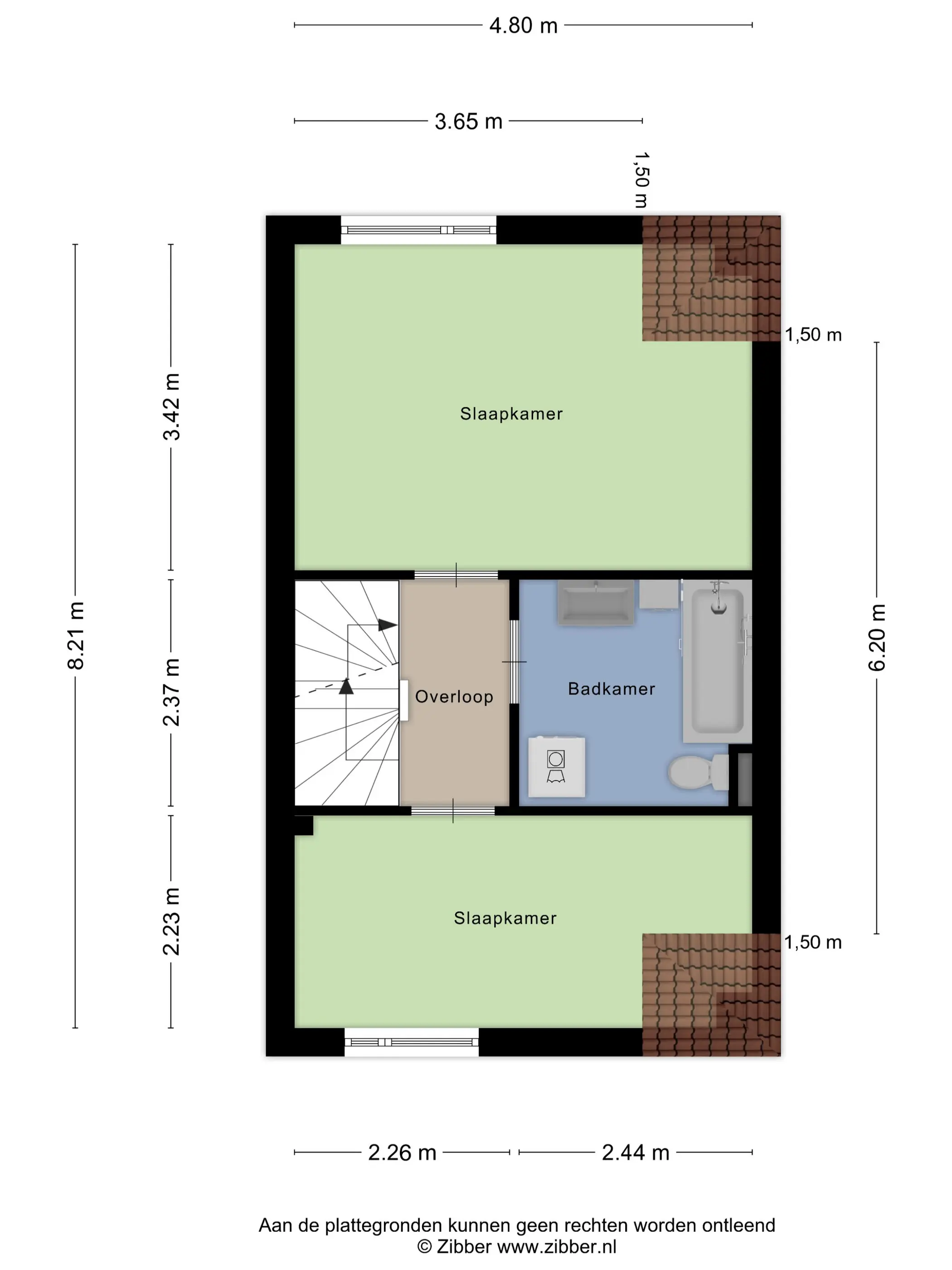
EERSTE VERDIEPING

Ruime overloop met toegang tot alle vertrekken en trap naar de 2e verdieping.

Slaapkamer 1 (ca. 16 m2) is gelegen aan de achterzijde van de woning en beschikt over laminaatvloer en hor.
Slaapkamer 2 (ca. 11 m2) is gelegen aan de voorzijde van de woning en beschikt over laminaatvloer.

Moderne badkamer (ca. 6 m2) met sanitaire voorzieningen zoals een wastafel met wastafelmeubel, spiegel met spiegelkast, een extra handdoekenkast, het tweede toilet, ligbad met douchescherm en de wasmachine- en drogeraansluiting. De badkamer is geheel betegeld in een lichte kleurstelling.

2e VERDIEPING

Voorzolder met een Velux dakraam en het afzuigsysteem.

Slaapkamer 3 (ca. 11 m2) voorzien van parketvloer, een Velux dakraam aan de voorzijde van de woning en een vaste kast met stelplaats voor de HR C.V. combiketel Remeha 2021 en de zonneboiler.

BIJZONDERHEDEN:

- Gelegen op een perceel van 114 m2 eigen grond;
- Goed geïsoleerde woning voorzien van energielabel A geldig tot 04-08-2035;
- Verwarming en warmwater middels Cv ketel Remeha 2021;
- De thermische zonnepanelen zijn tijdens de bouw in 2002 in de schuine zijde van de achtergevel geplaatst ten behoeve van de zonneboiler;
- Achtertuin is gelegen op het zonnige zuidwesten;
- Vrijstaande berging, ideaal voor fietsen en tuingereedschap;
- Complete keuken bouwjaar 2022;
- Groene en kindvriendelijke woonomgeving;
- Op korte afstand van scholen, winkels, sportvoorzieningen en openbaar vervoer;
- Uitstekende verbinding naar Rotterdam;
- Uitvalswegen zijn ook snel bereikbaar.

MAKELAAR: JAN-HEIN SCHILDERMAN
Lees meer

Kenmerken

Overdracht

Status
verkocht
Aanvaarding
in overleg

Bouw

Soort woning
woonhuis
Soort woonhuis
eengezinswoning
Type woonhuis
tussenwoning
Aantal woonlagen
3
Bouwjaar
2002
Onderhoud binnen
goed
Onderhoud buiten
goed
Voorzieningen
mechanische ventilatie, buitenzonwering, dakraam, zonnepanelen
Isolatie
dakisolatie, muurisolatie, vloerisolatie, dubbel glas

Energie

Energielabel
A
Verwarming
cv ketel
Warm water
cv ketel
C.V.-ketel
gas gestookte combi-ketel uit 2021 van Remeha, eigendom

Oppervlakten en inhoud

Woonoppervlakte
96 m²
Perceeloppervlakte
114 m²
Inhoud
341 m³
Bergruimte oppervlakte
8 m²

Indeling

Aantal kamers
4

Buitenruimte

Ligging
aan rustige weg, in woonwijk
Tuin
achtertuin met een oppervlakte van 45 m² en is gelegen op het zuidwesten

Garage / Schuur / Berging

Garage
geen garage
Parkeergelegenheid
openbaar parkeren
Schuur/berging
vrijstaand steen

Foto's

Plattegronden

Downloads

Video's

Locatie

Ook jouw woning succesvol verkopen?

Neem dan contact op

Gratis waardebepaling

Vraag een bezichtiging aan of neem contact met ons op