Saffierlaan 84

3162 PL RHOON
Verkocht

Omschrijving

Ontdek deze schitterende tussenwoning in de geliefde wijk Rhoon-Portland, een ideale plek voor gezinnen die comfort, locatie en rust zoeken. Gelegen aan de rand van de wijk, met uitzicht over de groene groenstrook aan de voorzijde, biedt deze woning veel privacy en een zonnige tuin op het zuiden. Het goed onderhouden huis beschikt over maar liefst 5 slaapkamers, een moderne keuken en complete badkamer. Met vloerverwarming op de begane grond, 2 dakkapellen op de tweede verdieping, 8 zonnepanelen en een gunstige ligging nabij voorzieningen, recreatiegebieden en uitvalswegen, is deze woning echt een pareltje voor iedereen die op zoek is naar een comfortabele en centrale woning. Op loopafstand vindt u winkels zoals Kruidvat, Albert Heijn en Bakkerij Uljee. Recreatiegebieden De Rhoonse en Carnisse Grienden zijn vlakbij voor wandelen en fietsen. Daarnaast zijn openbaar vervoer en uitvalswegen snel bereikbaar. Verschillende scholen en kinderopvang zorgen voor extra gemak voor gezinnen.
Maak van deze woning uw nieuwe thuis en geniet van de combinatie van wooncomfort, rust en een toplocatie in Rhoon-Portland!

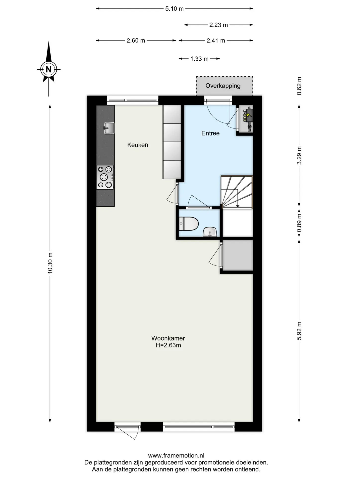
Indeling met indicatieve maten

BEGANE GROND:

Bij binnenkomst in de woning betreedt u de hal met meterkast en een nette, betegelde toiletruimte met hangend toilet en fonteintje. Vanuit de hal heeft u toegang tot de keuken en de lichte woonkamer. De PVC-vloer in visgraatmotief en de gladde wanden en plafonds zorgen voor een moderne uitstraling.
De open keuken (ca. 11 m²) aan de voorzijde is uitgevoerd in 2 rechte zwarte opstellingen met diverse inbouwapparatuur van Siemens, waaronder een 5-pits gaskookplaat, RVS-afzuigkap, vaatwasser, combi oven en een dubbeldeurs koel/vriescombinatie met ijsblokjesfunctie en een Quooker.
De royale woonkamer (ca. 30 m²) aan de tuinzijde beschikt over grote ramen en een loopdeur naar de zonnige achtertuin, waardoor het binnen- en buitenleven naadloos in elkaar overlopen. De tuin is gelegen op het zuiden, onderhoudsvriendelijk aangelegd met bestrating, kunstgras en een handige stenen berging.

EERSTE VERDIEPING:

De overloop geeft toegang tot drie slaapkamers en de badkamer.
De ouderslaapkamer (ca. 17 m²) aan de achterzijde beschikt over een hoek kledingkast en biedt een fijne plek om tot rust te komen.
Aan de voor- en achterzijde zijde bevinden zich nog twee slaapkamers (ca. 8 m² en 7 m²), ideaal als kinderkamers of werkruimte.
De eerste verdieping is afgewerkt met een laminaatvloer en heeft grote raampartijen.
De moderne badkamer (ca. 5 m²) is afgewerkt met grote lichtgrijze wandtegels en houtlook tegels, en beschikt over een wastafelmeubel, grote spiegel met verlichting, inloopdouche, hangend tweede toilet en zwarte kranen en regendouche.

TWEEDE VERDIEPING:

De tweede verdieping biedt volop ruimte met twee slaapkamers (ca. 10 m² ieder), gelegen aan de voor- en achterzijde, beide voorzien van een dakkapel voor extra licht en ruimte.
De overloop geeft toegang tot de aparte en afgesloten was-/CV-ruimte en biedt extra bergruimte.
Met de dakkapellen aan beide zijden brengt deze verdieping veel daglicht en ventilatie in huis, ideaal voor een werk- of slaapkamer.

- Gelegen aan de rand met vrij uitzicht over groenstrook
- Zonnige tuin op het zuiden met kunstgras, bestrating en stenen berging
- Woning beschikt over 5 slaapkamers
- Vloerverwarming op de begane grond en 8 zonnepanelen voor energiezuinig wonen
- Dakkapellen op de tweede verdieping zorgen voor extra licht en ruimte
- Moderne open keuken met inbouwapparatuur van Siemens
- Ruime woonkamer van circa 30 m² met grote ramen en loopdeur naar de tuin
- Gelegen dichtbij winkels zoals Albert Heijn, Kruidvat en Bakkerij Uljee, en recreatiegebieden De Rhoonse en Carnisse Grienden
- Uitstekende bereikbaarheid met snel openbaar vervoer en uitvalswegen, plus scholen en kinderopvang in de buurt

Makelaar: Marco Bos
Lees meer

Kenmerken

Overdracht

Status
verkocht
Aanvaarding
in overleg

Bouw

Soort woning
woonhuis
Soort woonhuis
eengezinswoning
Type woonhuis
tussenwoning
Aantal woonlagen
3
Bouwjaar
2007
Onderhoud binnen
goed
Onderhoud buiten
goed
Voorzieningen
mechanische ventilatie, buitenzonwering, dakraam, zonnepanelen

Energie

Energielabel
A
Verwarming
cv ketel, vloerverwarming gedeeltelijk
C.V.-ketel
gas gestookte cv-ketel uit 2022

Oppervlakten en inhoud

Woonoppervlakte
130 m²
Perceeloppervlakte
117 m²
Inhoud
443 m³
Bergruimte oppervlakte
7 m²
Buitenruimte oppervlakte
1 m²

Indeling

Aantal kamers
6

Buitenruimte

Ligging
in woonwijk, vrij uitzicht
Tuin
achtertuin met een oppervlakte van 43 m² en is gelegen op het zuiden

Garage / Schuur / Berging

Garage
geen garage
Parkeergelegenheid
openbaar parkeren
Schuur/berging
vrijstaand steen

Foto's

Plattegronden

Downloads

Video's

Locatie

Ook jouw woning succesvol verkopen?

Neem dan contact op

Gratis waardebepaling

Vraag een bezichtiging aan of neem contact met ons op