Schrijnwerkerij 23

2993 CH BARENDRECHT
Te koop
€ 550.000,- k.k.

Omschrijving

Op een rustige en kindvriendelijke locatie in Barendrecht staat deze goed onderhouden hoekwoning met een woonoppervlakte van maar liefst 148 m².
Deze woning biedt alles wat je van een gezinswoning mag verwachten: drie slaapkamers, een royale zolder met 2 kamers, een lichte woonkamer, een complete keuken en een verzorgde achtertuin met berging en achterom.
Dankzij de praktische indeling en de gunstige ligging nabij scholen, winkels, openbaar vervoer en uitvalswegen, is dit de ideale woning voor gezinnen die ruimte en comfort zoeken.
Kortom, Schrijnwerkerij 23 in Barendrecht is een complete en ruime gezinswoning waar je zo in kunt trekken.

Indeling met indicatieve maten

BEGANE GROND:
Via de entree kom je in de hal met toilet, meterkast en trapopgang. Vervolgens stap je de lichte en royale woonkamer (ca. 28 m²) binnen. Grote ramen en openslaande deuren naar de tuin zorgen voor veel daglicht en een prettige sfeer. De plavuizenvloer met vloerverwarming geeft de ruimte een warme uitstraling.
De keuken (ca. 10 m²) bevindt zich aan de voorzijde van de woning en is ruim van opzet. Deze is voorzien van diverse inbouwapparatuur, waaronder een oven, 4 persoons keramische kookplaat, geïntegreerde afzuigkap in het bovenkastje, koel-vriescombinatie en vaatwasser. Ook is er voldoende ruimte voor een eettafel, waardoor koken en gezellig tafelen hier hand in hand gaan. Het raam aan de voorzijde is voorzien van een handmatig bedienbare screen.

ACHTERTUIN
De achtertuin is een fijne plek om te ontspannen. De tuin is verzorgd aangelegd en beschikt over een houten berging, achterom en een sfeervolle vijverpartij. Ook is er ruimte genoeg voor een loungehoek of buitentafel. Een elektrisch bedienbaar zonnescherm aan de gevel biedt beschutting op warme dagen. De voortuin is eveneens fraai aangelegd en geeft de woning een nette uitstraling.

EERSTE VERDIEPING:
Op de eerste verdieping zijn drie ruime slaapkamers aanwezig, elk met veel lichtinval en goed indeelbaar.
Slaapkamer 1 (ca. 18 m²) gelegen aan de voorzijde
Slaapkamer 2 (ca. 12 m²) gelegen aan de achterzijde en voorzien van een handmatig bedienbaar zonnescherm
Slaapkamer 3 (ca. 8 m²) gelegen aan de achterzijde
Alle slaapkamers zijn afgewerkt met een vinylvloer en behang wanden.
De badkamer (ca. 4 m²) is netjes betegeld en uitgerust met een ligbad met glazen douchewand, wastafelmeubel en duoblok toilet. Alles wat je nodig hebt voor dagelijks comfort vind je hier terug.

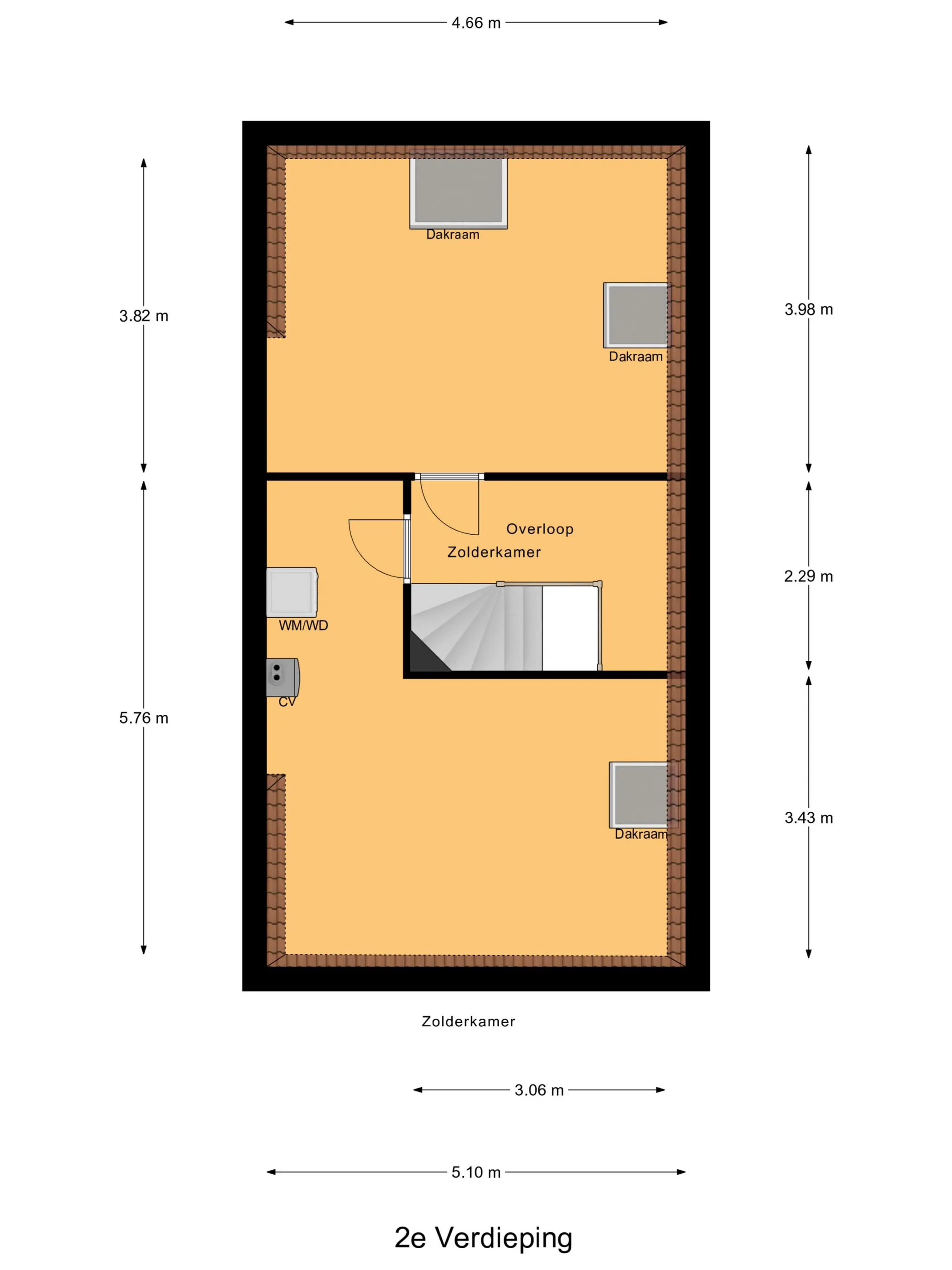
TWEEDE VERDIEPING:
De tweede verdieping is bijzonder ruim en is opgedeeld in 2 kamers. Dankzij de 2 Velux dakramen is er volop licht en daardoor zijn de mogelijkheden groot: een extra slaapkamer, werkkamer of hobbyruimte behoren allemaal tot de opties. Daarnaast zijn hier de CV-opstelling en wasmachine/ droger aansluitingen te vinden.

ACHTERTUIN
De achtertuin is een fijne plek om te ontspannen. De tuin is verzorgd aangelegd en beschikt over een berging, achterom en een sfeervolle vijverpartij. Ook is er ruimte genoeg voor een loungehoek of buitentafel. Een zonnescherm aan de gevel biedt beschutting op warme dagen. De voortuin is eveneens fraai aangelegd en geeft de woning een nette uitstraling.

- Woonoppervlakte circa 148 m²
- Hoekwoning met veel lichtinval
- Drie slaapkamers en een ruime zolderkamer
- Nette badkamer en keuken met inbouwapparatuur
- Royale woonkamer met toegang tot de tuin
- Vloerverwarming in de keuken, woonkamer en hal
- Achtertuin met berging, achterom en zonnescherm
- Gelegen in een rustige, kindvriendelijke wijk
- Nabij winkels, scholen en openbaar vervoer

Makelaar: Marco Bos
Lees meer

Kenmerken

Overdracht

Vraagprijs
€ 550.000,- k.k.
Status
beschikbaar
Aanvaarding
in overleg

Bouw

Soort woning
woonhuis
Soort woonhuis
eengezinswoning
Type woonhuis
hoekwoning
Aantal woonlagen
3
Bouwjaar
1998
Onderhoud binnen
goed
Onderhoud buiten
goed
Voorzieningen
mechanische ventilatie, buitenzonwering, dakraam

Energie

Energielabel
B
Verwarming
cv ketel, vloerverwarming gedeeltelijk
C.V.-ketel
gas gestookte combi-ketel uit 2017 van Nefit

Oppervlakten en inhoud

Woonoppervlakte
148 m²
Perceeloppervlakte
193 m²
Inhoud
485 m³
Bergruimte oppervlakte
11 m²

Indeling

Aantal kamers
6

Buitenruimte

Ligging
aan rustige weg, in woonwijk, vrij uitzicht
Tuin
achtertuin met een oppervlakte van 84 m² en is gelegen op het zuiden

Garage / Schuur / Berging

Garage
geen garage
Parkeergelegenheid
openbaar parkeren
Schuur/berging
vrijstaand hout

Plattegronden

Downloads

Video's

Locatie

Marco Bos

Interesse in deze woning?

Marco Bos

Vraag een bezichtiging aan

Vraag een bezichtiging aan of neem contact met ons op