Sikkelwei 40

2992 ZN BARENDRECHT
Verkocht

Omschrijving

Ontdek dit fraaie en comfortabele appartement op de begane grond, gelegen in de geliefde en jonge wijk Lagewei. Deze wijk kenmerkt zich door haar rustige sfeer, jonge gezinnen en een gevarieerd aanbod aan woningen en appartementen. Perfect gelegen nabij recreatiegebied De Oude Maas, waardoor u in een mum van tijd kunt genieten van de natuur en buitenactiviteiten. Daarnaast zijn uitvalswegen, scholen en het centrum van Barendrecht met diverse winkels en het NS-station op korte (fiets)afstand bereikbaar.
Dit appartement beschikt over twee ruime slaapkamers, een lichte woonkamer met grote ramen die uitkijken op de tuin, en een open keuken die uitnodigt tot koken en gezelligheid. De woning is uitgerust met grote raampartijen en elektrische rolluiken voor extra comfort en privacy, terwijl het elektrische zonnescherm in de tuin voor een fijne schaduwplek zorgt op zonnige dagen. De sfeervolle tuin, op het oosten gelegen, biedt volop gelegenheid om buiten te genieten en te ontspannen.
Kortom, een ideale woning voor wie op zoek is naar comfort, privacy en een aantrekkelijke locatie in een jonge, levendige wijk.

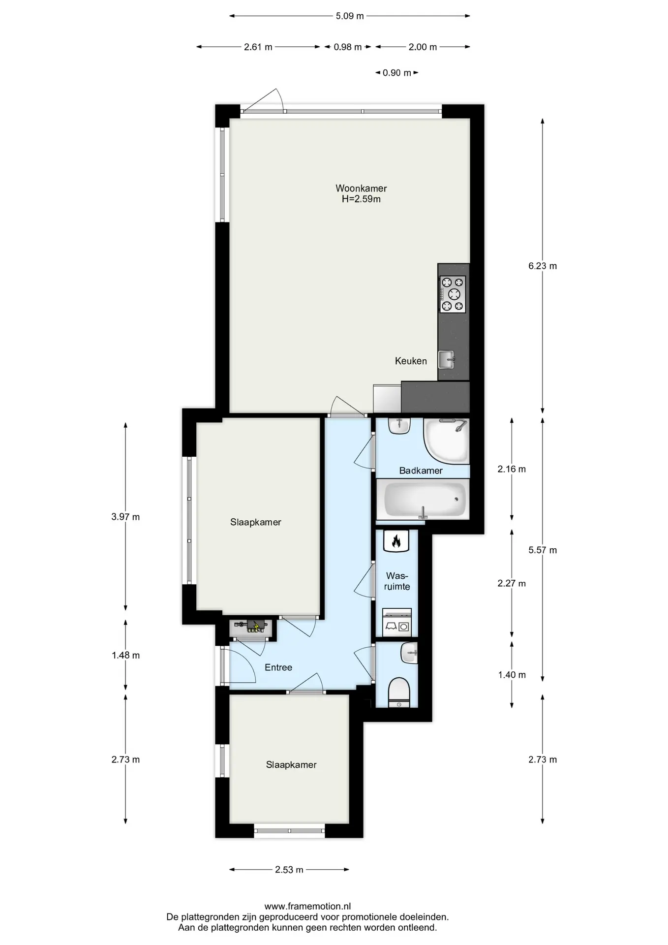
Indeling met indicatieve maten

BEGANE GROND:

Bij binnenkomst via de hal krijgt u toegang tot alle vertrekken. De ruime woonkamer (ca. 32 m² inclusief keuken), gelegen aan de tuinzijde, beschikt over grote raampartijen die volop daglicht en uitzicht op de tuin bieden. De open keuken is voorzien van een SMEG fornuis met grote oven, koelkast, vaatwasser en een kokend waterkraan, perfect voor gezellige kookmomenten. De gehele woning is voorzien van een stijlvolle laminaatvloer, wat het geheel een moderne uitstraling geeft.

Twee comfortabele slaapkamers bevinden zich aan de voor- en zijkant van het appartement. Slaapkamer 1 (ca. 10 m²) beschikt over een vaste schuifkastenwand en behangwanden, terwijl slaapkamer 2 (ca. 7 m²) ruimte biedt voor een bureau of garderobe.

De moderne badkamer (ca. 4 m²) is geheel betegeld in een wit/grijze kleurstelling en is uitgerust met een ligbad, aparte douchecabine en een wastafelmeubel.

De aparte afgesloten kast (ca. 2 m²) biedt ruimte voor de CV-ketel, wasmachine en droger, waardoor alles netjes en opgeruimd blijft.

De zonnige achtertuin op het oosten is sfeervol aangelegd met sierbeplanting en groen, inclusief bestrating en schutting voor extra privacy. Geniet hier van de ochtendzon onder het elektrische zonnescherm. De rondom aanwezige elektrische rolluiken bieden extra rust en comfort. De houten berging in de tuin biedt voldoende opbergruimte voor tuinmaterialen en fietsen.

- Ideaal gelegen op de begane grond met directe toegang tot de tuin
- Achtertuin gelegen op het oosten
- Ruime woonkamer met grote ramen voor veel natuurlijk licht
- Moderne open keuken met o.a. een SMEG fornuis en grote oven
- Twee slaapkamers, ideaal voor een stel, klein gezin of als thuiskantoor
- Strakke badkamer met ligbad, aparte douche en wastafelmeubel
- Elektrische rolluiken rondom voor extra privacy en rust
- Aparte kast voor CV-ketel, wasmachine en droger
- Houten berging in de tuin voor extra opbergruimte
- Gelegen in een jonge, levendige wijk nabij recreatiegebied en voorzieningen

Makelaar: Marco Bos
Lees meer

Kenmerken

Overdracht

Status
verkocht
Aanvaarding
in overleg

VvE checklist

Inschrijving KVK
Ja
Jaarlijkse vergadering
Nee
Periodieke bijdrage
Nee (22,56 per maand)
Reservefonds aanwezig
Nee
Onderhoudsplan
Nee
Opstalverzekering
Ja

Bouw

Soort woning
appartement
Soort appartement
benedenwoning
Aantal woonlagen
1
Woonlaag
1
Bouwjaar
2008
Open portiek
nee
Onderhoud binnen
goed
Onderhoud buiten
goed
Voorzieningen
mechanische ventilatie, rolluiken, buitenzonwering

Energie

Energielabel
B
Verwarming
cv ketel
C.V.-ketel
combi-ketel

Oppervlakten en inhoud

Woonoppervlakte
68 m²
Bergruimte oppervlakte
7 m²

Indeling

Aantal kamers
3

Buitenruimte

Ligging
aan rustige weg, in woonwijk, vrij uitzicht
Tuin
achtertuin met een oppervlakte van 39 m² en is gelegen op het oosten

Garage / Schuur / Berging

Garage
geen garage
Parkeergelegenheid
openbaar parkeren
Schuur/berging
vrijstaand hout

Foto's

Plattegronden

Downloads

Video's

Locatie

Ook jouw woning succesvol verkopen?

Neem dan contact op

Gratis waardebepaling

Vraag een bezichtiging aan of neem contact met ons op