Slangenburg 196

3328 DV DORDRECHT
Te koop
€ 450.000,- k.k.

Omschrijving

Modern wonen met een unieke achtertuin op het zuidoosten.

Bent u op zoek naar een moderne, instapklare woning op een bijzondere locatie? Dan is deze ruime hoekwoning aan de Slangenburg 196 in Dordrecht absoluut een bezichtiging waard. Hier woont u onderaan de Wieldrechtse Zeedijk, op steenworp afstand van de prachtige Biesbosch, met alle rust en natuur letterlijk om de hoek. De woning is tot in detail verzorgd en biedt alles wat u zoekt. De uitgebouwde woonkamer is heerlijk licht en voorzien van een grote schuifpui naar de zonnige achtertuin. De begane grond is afgewerkt met een stijlvolle antracietkleurige natuurstenen vloer met vloerverwarming, terwijl de moderne keuken is uitgerust met alle gemakken. Op de verdieping bevinden zich drie ruime slaapkamers en moderne sanitaire voorzieningen. Ideaal voor een gezin of voor wie graag extra ruimte wil. En dan de tuin: een waar pareltje. Op het zuidoosten gelegen, fraai aangelegd en direct grenzend aan water en een dijktalud. Een plek waar u in alle privacy kunt genieten van de zon, de rust en het groene uitzicht. Werkelijk een unieke combinatie die u zelden tegenkomt. Kortom: een moderne hoekwoning op een schitterende locatie, volledig instapklaar en met een achtertuin die u iedere dag een vakantiegevoel geeft. Kom kijken en laat u verrassen!

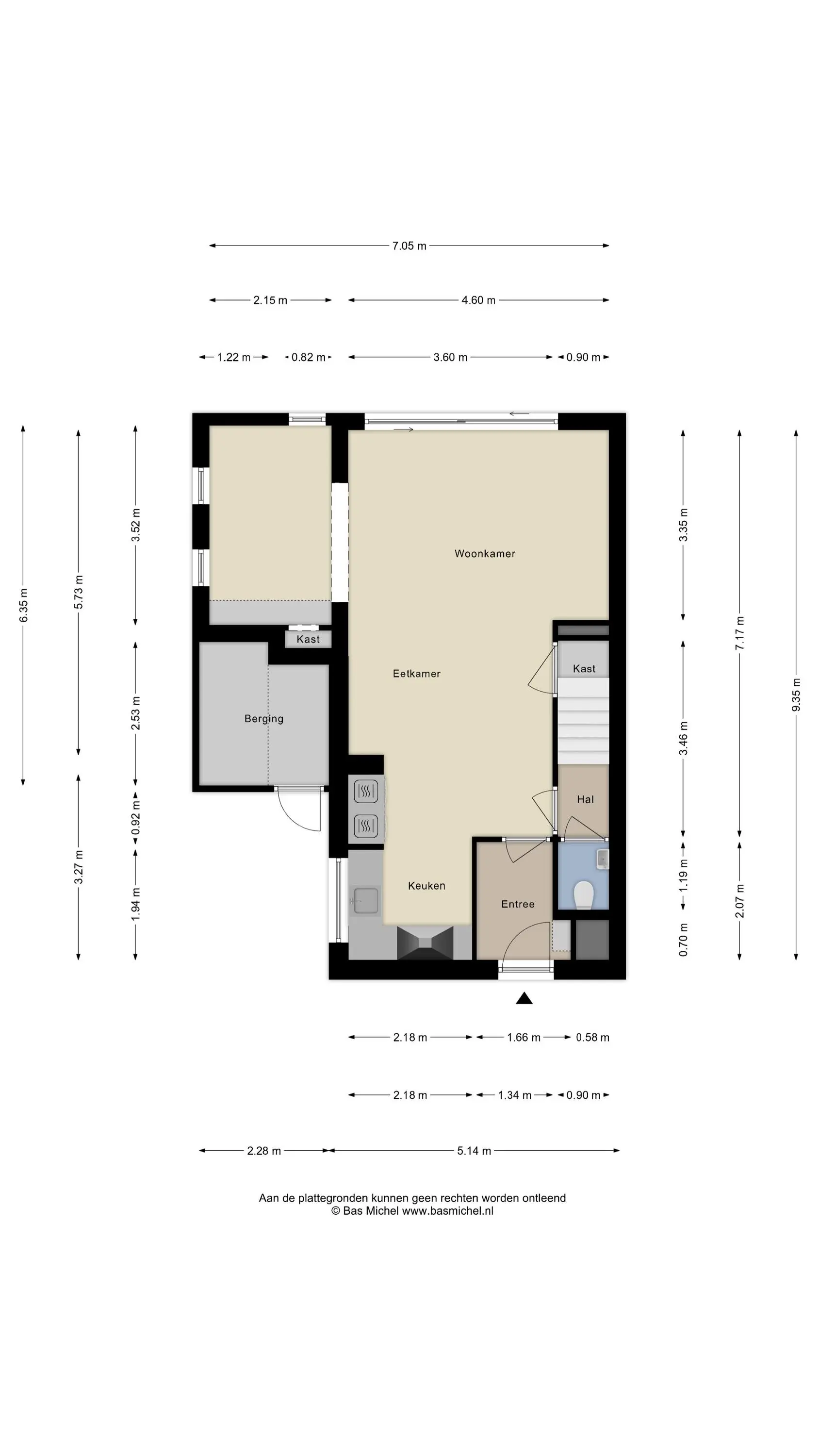
INDELING MET INDICATIEVE MATEN:

BEGANE GROND

Overdekte entree, hal, meterkast, via glazen deuren heeft u toegang tot de woonkamer. Toiletruimte voorzien van een duoblok en fonteintje. De toiletruimte is geheel betegeld in een lichte kleurstelling.

De aan de zijkant uitgebouwde woonkamer (ca. 37 m2) is afgewerkt met een stijlvolle antracietkleurige natuurstenen vloer met vloerverwarming. De woonkamer is voorzien van een trapkast met een handige binnenkast. Middels schuifpui met hor heeft u toegang tot de zonnige achtertuin. Via de woonkamer heeft u toegang tot een binnenhal naar de 1e verdieping. Binnenhal met een toiletruimte voorzien van een zwevend toilet en fonteintje. De toiletruimte is geheel betegeld in een lichte kleurstelling.

De moderne open keuken (ca. 5 m2) is gelegen aan de voorzijde van de woning en is uitgevoerd in een L-opstelling. Deze complete keuken is voorzien van veel kastruimte en diverse inbouwapparatuur zoals een koelkast, vrieskast, 5-pits gaskookplaat, RVS afzuigkap, oven, magnetron en een vaatwasser.
Het geheel is uitgevoerd in lichte kleuren en afgewerkt met een natuurstenen aanrechtblad. De gezellige vaste ontbijtbar is verder voorzien van extra kastruimte.

De achtertuin is een waar pareltje. Op het zuidoosten gelegen, fraai aangelegd en direct grenzend aan water en een dijktalud. Een plek waar u in alle privacy kunt genieten van de zon, de rust en het groene uitzicht. De achtertuin beschikt verder over achterom via de zijkant, sierbestrating, bloemborders, gazon en een mooie vijver. Tevens staat een berging in de zijtuin.

Stenen berging (ca. 5 m2) voorzien van elektra en stopcontacten.

EERSTE VERDIEPING

Ruime overloop met fraaie RVS glazen balustrade, vaste kast afsluitbaar met schuifpanelen en met de wasmachine- en drogeraansluiting. De wasruimte is verder voorzien van een wasbak met koudwaterkraan en is afgewerkt met wandtegels. Technische ruimte met stelplaats voor de HR C.V. combiketel (Nefit 2012). Toegang tot alle vertrekken.

Slaapkamer 1 (ca. 21 m2) is gelegen aan de voorzijde van de woning en is voorzien van een 4-deuren schuifkastenwand. Deze slaapkamer is verder afgewerkt met lambrisering.
Slaapkamer 2 (ca. 15 m2) is gelegen aan de achterzijde van de woning en beschikt over hoog plafond afgewerkt met sfeerverlichting en spotjes. Deze slaapkamer is verder afgewerkt met lambrisering.
Slaapkamer 3 (ca. 8 m2) is gelegen aan de zijkant van de woning en is voorzien van een vaste kastenwand.

De slaapkamers zijn afgewerkt met een duurzame laminaatvloer en hor.

Moderne badkamer (ca. 5 m2) met sanitaire voorzieningen zoals een wastafel, spiegel, verlichting, hangend tweede toilet, ligbad en inloopdouche met regendouche. Het plafond van het douchegedeelte is afgewerkt met sterren lampjes. De badkamer is geheel betegeld en afgewerkt met vloerverwarming en spotjes.

BIJZONDERHEDEN:

- Hoekwoning gelegen op een perceel van 167 m2 eigen grond;
- Deels kunststof deels houten kozijnen voorzien van isolerende beglazing;
- Verwarming en warmwater middels Cv ketel Nefit 2012;
- Achtertuin gelegen op het zuidoosten;
- De begane grond is voorzien van vloerverwarming;
- Uitgebouwde woonkamer;
- Gevels gereinigd, opnieuw gevoegd en geïmpregneerd;
- Zinken goten, hwa’s en houten boeiborden vernieuwd;
- Stuk grond grenzend aan bovengenoemd kadastraal perceel van de gemeente Dordrecht, sectie Q, nummer 9886, ca. 50 m2 wordt gehuurd van de gemeente Dordrecht voor € 89,- per jaar;
- Groenstrook aan de zijkant wordt beheerd volgens de overeenkomst “samen de buurt mooier maken” met de gemeente Dordrecht;
- Recht van overpad.

MAKELAAR: JAN-HEIN SCHILDERMAN
Lees meer

Kenmerken

Overdracht

Vraagprijs
€ 450.000,- k.k.
Status
beschikbaar
Aanvaarding
in overleg

Bouw

Soort woning
woonhuis
Soort woonhuis
eengezinswoning
Type woonhuis
hoekwoning
Aantal woonlagen
2
Bouwjaar
1980
Onderhoud binnen
goed
Onderhoud buiten
goed
Voorzieningen
mechanische ventilatie, schuifpui
Isolatie
dubbel glas

Energie

Energielabel
C
Verwarming
cv ketel
Warm water
cv ketel
C.V.-ketel
gas gestookte combi-ketel uit 2012 van Nefit, eigendom

Oppervlakten en inhoud

Woonoppervlakte
118 m²
Perceeloppervlakte
167 m²
Inhoud
510 m³
Inpandige ruimte oppervlakte
5 m²

Indeling

Aantal kamers
4

Buitenruimte

Ligging
aan rustige weg, in woonwijk
Tuin
achtertuin met een oppervlakte van 52 m² en is gelegen op het zuidoosten

Garage / Schuur / Berging

Garage
geen garage
Parkeergelegenheid
openbaar parkeren
Schuur/berging
aangebouwd steen

Plattegronden

Downloads

Video's

Locatie

Jan-Hein Schilderman

Interesse in deze woning?

Jan-Hein Schilderman

Vraag een bezichtiging aan

Vraag een bezichtiging aan of neem contact met ons op