Strausslaan 88

2992 PE BARENDRECHT
Verkocht

Omschrijving

In de populaire en kindvriendelijke wijk Nieuweland bieden wij deze sfeervolle hoekwoning aan. Door de ligging op de hoek beschikt de woning over een speelse indeling en een extra ruime voortuin op het zonnige zuiden, volledig omheind en met veel privacy. Binnen treft u een moderne afwerking met een luxe keuken (2020), een stijlvolle badkamer (2020) en drie comfortabele slaapkamers. Dankzij de grote ramen en de directe toegang tot zowel de voor- als achtertuin geniet de woonkamer van veel licht en een fijne verbinding met buiten.
De woning is instapklaar en ideaal voor gezinnen die op zoek zijn naar ruimte, comfort en een gunstige ligging. In de directe omgeving vindt u basisscholen, kinderopvang, speelveldjes en pleintjes waar kinderen veilig kunnen spelen. Bovendien bent u binnen enkele minuten op de uitvalswegen richting Rotterdam, Dordrecht en Breda, en zijn er diverse mogelijkheden voor openbaar vervoer in de buurt. Zo combineert u hier het beste van rustig en groen wonen met uitstekende bereikbaarheid.

Indeling met indicatieve maten

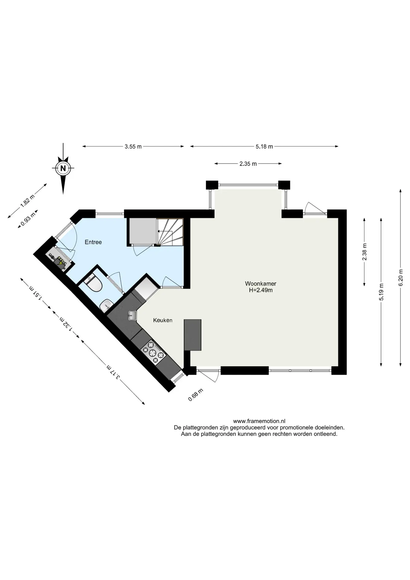
BEGANE GROND:

U betreedt de woning via de ruime hal met meterkast en moderne toiletruimte (beige betegeld, voorzien van hangend toilet en fonteintje). Vanuit de hal bereikt u via een stijlvolle glazen deur de lichte woonkamer (ca. 29 m²). Dankzij de ramen aan zowel de voor- als achterzijde is er veel daglicht en heeft u fraai zicht op beide tuinen. Vanuit de woonkamer zijn zowel de voortuin als de achtertuin bereikbaar.

De open keuken (ca. 5 m²) is in 2020 vernieuwd en uitgevoerd in stijlvol zwart met een granieten werkblad. De keuken in hoekopstelling is voorzien van hoogwaardige inbouwapparatuur, waaronder een Bora-inductiekookplaat, combi-oven met stoomfunctie, vaatwasser en koelkast. De begane grond is strak afgewerkt met glad stucwerk en een pvc-vloer.

De achtertuin is volledig bestraat en voorzien van houten erfafscheidingen. Aan de voorzijde ligt de royale, sfeervol aangelegde tuin op het zuiden, omheind met een groene haag en ingericht met gras en sierbestrating, ideaal voor meerdere zitjes en optimaal genieten van de zon en privacy.

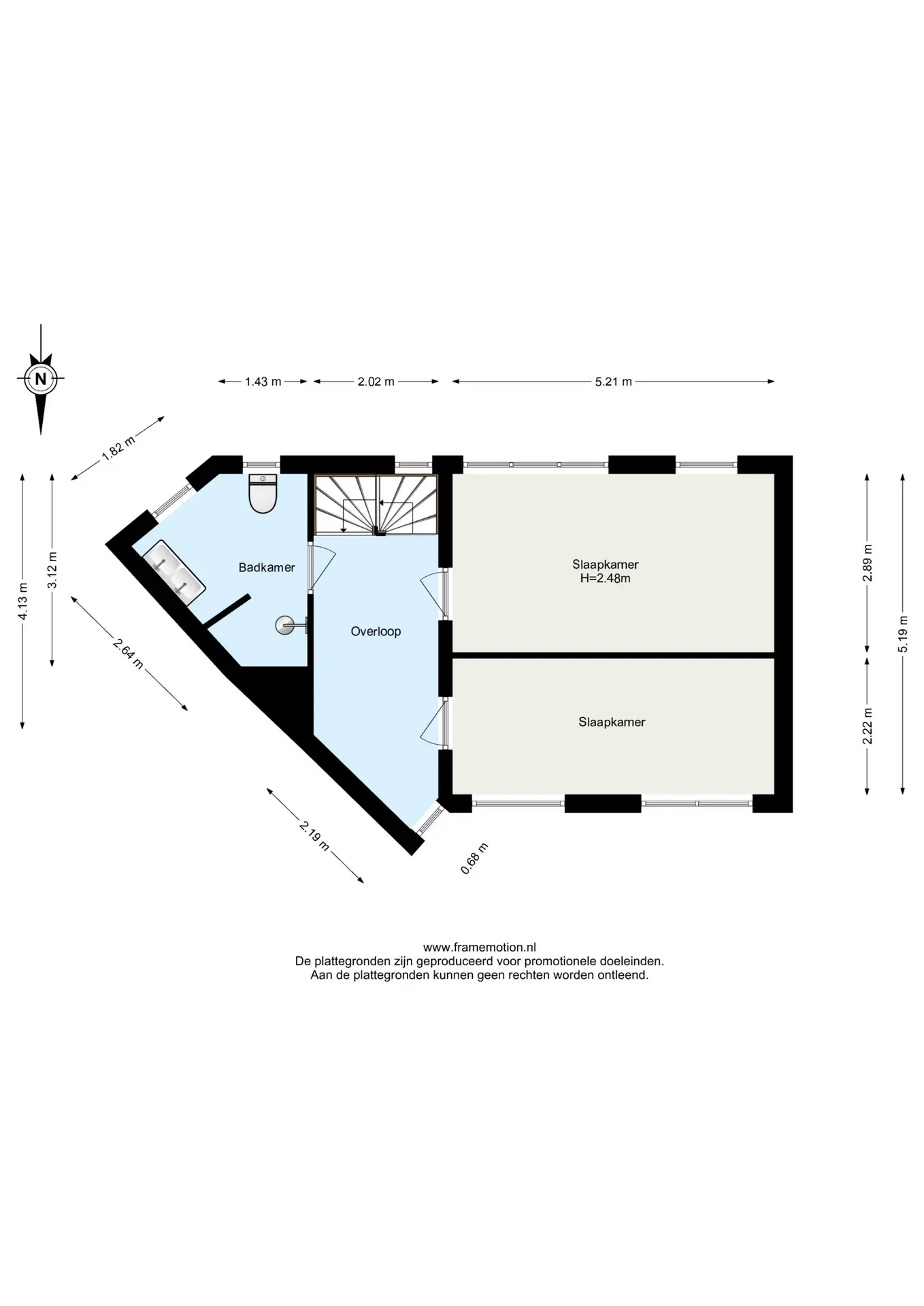
EERSTE VERDIEPING:

De overloop biedt toegang tot twee slaapkamers en de badkamer.

Slaapkamer 1 (ca. 15 m²): gelegen aan de voorzijde, met grote raampartijen en handmatig bedienbare rolluiken.

Slaapkamer 2 (ca. 12 m²): gelegen aan de achterzijde.

De gehele verdieping is afgewerkt met een laminaatvloer.
De luxe badkamer (ca. 5 m²) is volledig betegeld in neutrale tinten en uitgerust met een ruime inloopdouche, een tweede hangend toilet, een dubbel wastafelmeubel en spiegel met verlichting. Extra comfort wordt geboden door vloerverwarming.

TWEEDE VERDIEPING:

Hier vindt u een overloop met een afgesloten wasruimte, voorzien van wasmachine/droger aansluiting en de cv-opstelling. Daarnaast is er een ruime derde slaapkamer (ca. 21 m²) met groot raam aan de voorzijde, bergruimte achter de knieschotten en een duurzame PVC-vloer.

BERGING:

Achter de woning bevindt zich een vrijstaande stenen berging, ideaal voor fietsen en extra opslag.

- Gelegen op de hoek met een speelse indeling en extra privacy
- Royale voortuin op het zuiden, volledig omheind met groene haag
- Moderne keuken met granieten werkblad en hoogwaardige inbouwapparatuur (o.a. Bora-inductiekookplaat, combi-oven met stoomfunctie)
- Luxe badkamer met inloopdouche, dubbele wastafel, tweede toilet en vloerverwarming
- Lichte woonkamer met toegang tot zowel voor- als achtertuin
- Drie ruime slaapkamers, waarvan één op de tweede verdieping met veel bergruimte
- Afgesloten wasruimte met cv-opstelling en aansluiting voor wasmachine/droger
- Vrijstaande stenen berging achter de woning
- Gehele woning strak afgewerkt met pvc- en laminaatvloeren en glad stucwerk
- Gelegen in geliefde wijk Nieuweland met basisscholen, kinderopvang, speelveldjes en goede verbindingen naar uitvalswegen en OV

Makelaar: Marco Bos
Lees meer

Kenmerken

Overdracht

Status
verkocht
Aanvaarding
in overleg

Bouw

Soort woning
woonhuis
Soort woonhuis
eengezinswoning
Type woonhuis
tussenwoning
Aantal woonlagen
3
Bouwjaar
1992
Onderhoud binnen
goed
Onderhoud buiten
goed
Voorzieningen
rolluiken

Energie

Energielabel
A
Verwarming
cv ketel, vloerverwarming gedeeltelijk
C.V.-ketel
combi-ketel

Oppervlakten en inhoud

Woonoppervlakte
129 m²
Perceeloppervlakte
187 m²
Inhoud
419 m³
Bergruimte oppervlakte
5 m²

Indeling

Aantal kamers
5

Buitenruimte

Ligging
in woonwijk, vrij uitzicht

Garage / Schuur / Berging

Garage
geen garage
Parkeergelegenheid
openbaar parkeren
Schuur/berging
vrijstaand steen

Foto's

Plattegronden

Downloads

Video's

Locatie

Ook jouw woning succesvol verkopen?

Neem dan contact op

Gratis waardebepaling

Vraag een bezichtiging aan of neem contact met ons op