Titanium 32

3162 ZD RHOON
Verkocht

Omschrijving

Op zoek naar een heerlijk ruime gezinswoning met veel mogelijkheden, een comfortabele serre en een gunstige ligging? Dan is deze sfeervolle tussenwoning precies wat u zoekt. Hier woont u in een prettige, kindvriendelijke wijk met alle voorzieningen op korte afstand én met volop ruimte in en om de woning.
Deze woning combineert het beste van beide werelden: een rustige woonomgeving met veel groen en speelgelegenheden én de dagelijkse gemakken van winkels, scholen en openbaar vervoer binnen handbereik. Op loopafstand ligt het gezellige Bakkerspark, waar kinderen veilig kunnen spelen en waar u kunt genieten van een ontspannen wandeling. Voor de dagelijkse boodschappen kunt u terecht bij winkelcentrum Hof van Portland, en binnen enkele minuten fietsen bereikt u diverse basisscholen en kinderopvang. Ook de bereikbaarheid is uitstekend: uitvalswegen en openbaar vervoer zijn zeer nabij, waardoor steden als Rotterdam en Barendrecht moeiteloos bereikbaar zijn.
Binnen treft u een fijne, lichte woonkamer met zicht op de tuin en een keuken met vrij uitzicht aan de voorzijde. De royale serre aan de achterzijde vormt een waardevolle uitbreiding van de leefruimte, waardoor u zowel in de zomer als in de winter comfortabel kunt genieten van het buitengevoel. De eerste verdieping beschikt over drie ruime slaapkamers en een complete badkamer. De zolderverdieping biedt volop mogelijkheden om extra slaapkamers of een werk-/hobbyruimte te realiseren. De onderhoudsvriendelijke achtertuin met berging en achterom maakt het geheel compleet.

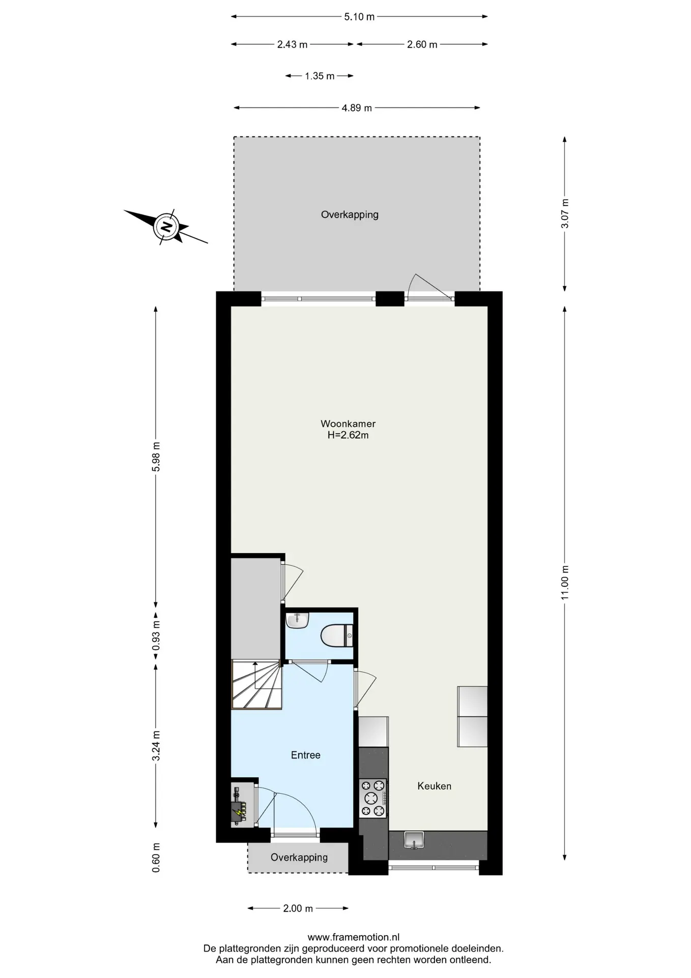
Indeling met indicatieve maten:

BEGANE GROND
Via de entree met meterkast en nette toiletruimte met fonteintje komt u in de lichte woonkamer (ca. 34 m²). Deze is afgewerkt met een laminaatvloer, behangwanden en voorzien van een airco-installatie. Vanuit de woonkamer heeft u een fraai zicht op de tuin en toegang tot de aangebouwde aluminium serre. Deze serre strekt zich uit over de volle breedte van de woning en is voorzien van verwarming, verlichting en zonwering. Dankzij de grote glaspartijen geniet u hier het hele jaar door van een fijne, lichte leefruimte.
De keuken (ca. 8 m²) ligt aan de voorzijde van de woning en biedt vrij uitzicht door de straat. De keuken is uitgevoerd in een lichte kleurstelling en opgesteld in een praktische hoekopstelling. Tot de inbouwapparatuur behoren onder meer een 6-pits gasfornuis met brede oven en grill, een RVS afzuigkap, koel-vriescombinatie en vaatwasser. Daarnaast is er een vrijstaande dubbele kast aanwezig met een combi-oven.
De onderhoudsvriendelijke achtertuin is gesitueerd op het noordoosten en aangelegd met sierbestrating. Achterin de tuin bevindt zich een stenen berging met daaraan bevestigd een vaste parasol die achterblijft voor de nieuwe eigenaar. De tuin is tevens bereikbaar via een achterpad.

EERSTE VERDIEPING
De overloop biedt toegang tot drie slaapkamers en de badkamer.

Slaapkamer 1 (ca. 15 m²) is gelegen aan de achterzijde en voorzien van airco
Slaapkamer 2 (ca. 11 m²) is gelegen aan de voorzijde
Slaapkamer 3 (ca. 10 m²) is eveneens gelegen aan de achterzijde

Alle slaapkamers zijn voorzien van een laminaatvloer en behangwanden.

De nette badkamer (ca. 5 m²) is geheel betegeld in een frisse wit-blauwe kleurstelling en beschikt over een ligbad, aparte douchecabine, tweede toilet (duoblok) en een vaste wastafel.

TWEEDE VERDIEPING
De tweede verdieping is momenteel één grote open ruimte (ca. 38 m²) met een laminaatvloer en bergruimte achter de knieschotten. Dankzij de hoge nok (4,11 meter) en de aanwezigheid van een Velux dakraam aan de achterzijde en een raam aan de voorzijde is dit een lichte en veelzijdige etage. Hier kunt u met gemak één of twee extra slaapkamers realiseren. Daarnaast vindt u hier de aansluitingen voor wasmachine, droger en de CV-installatie. Voor de liefhebber blijft de aanwezige biljarttafel achter.

BIJZONDERHEDEN
- Ruime tussenwoning met veel mogelijkheden
- Aangebouwde aluminium serre met verwarming, zonwering en verlichting
- Lichte woonkamer met airco en uitzicht op de tuin
- Moderne keuken in hoekopstelling met uitgebreide inbouwapparatuur
- 3 slaapkamers op de eerste verdieping
- Royale zolder met hoge nok en mogelijkheid tot 1 of 2 extra slaapkamers
- Nette badkamer met ligbad, aparte douche en tweede toilet
- Onderhoudsvriendelijke achtertuin met sierbestrating en stenen berging
- Centrale ligging nabij winkels, scholen, kinderopvang en groene recreatiemogelijkheden
- Uitstekende bereikbaarheid met openbaar vervoer en uitvalswegen

Makelaar: Marco Bos
Lees meer

Kenmerken

Overdracht

Status
verkocht
Aanvaarding
in overleg

Bouw

Soort woning
woonhuis
Soort woonhuis
eengezinswoning
Type woonhuis
tussenwoning
Aantal woonlagen
3
Bouwjaar
2007
Onderhoud binnen
goed
Onderhoud buiten
goed
Voorzieningen
mechanische ventilatie, buitenzonwering, airconditioning

Energie

Energielabel
A
Verwarming
cv ketel
C.V.-ketel
gas gestookte combi-ketel uit 2022

Oppervlakten en inhoud

Woonoppervlakte
134 m²
Perceeloppervlakte
146 m²
Inhoud
466 m³
Bergruimte oppervlakte
7 m²
Buitenruimte oppervlakte
16 m²

Indeling

Aantal kamers
5

Buitenruimte

Ligging
in woonwijk, vrij uitzicht
Tuin
achtertuin met een oppervlakte van 53 m²

Garage / Schuur / Berging

Garage
geen garage
Parkeergelegenheid
openbaar parkeren
Schuur/berging
vrijstaand steen

Foto's

Plattegronden

Downloads

Video's

Locatie

Ook jouw woning succesvol verkopen?

Neem dan contact op

Gratis waardebepaling

Vraag een bezichtiging aan of neem contact met ons op