Titanium 42

3162 ZD RHOON
Verkocht onder voorbehoud
verkocht onder voorbehoud

Omschrijving

Energiezuinige tussenwoning met energielabel A++, 12 zonnepanelen, HR++ isolatieglas en vloerverwarming in het geliefde Rhoon Portland!!!

Op zoek naar een woning die klaar is voor de toekomst én heerlijk woont in het heden? Dan is Titanium 42 in Rhoon Portland precies wat je zoekt. Deze energiezuinige en moderne gezinswoning combineert duurzaamheid, ruimte en comfort op een zeldzaam goede manier. Met een indrukwekkend energielabel A++, een warmtepomp, maar liefst 12 zonnepanelen, HR++ isolatieglas en vloerverwarming op de begane grond, woon je hier niet alleen comfortabel, maar ook milieubewust én kostenbesparend. De woning is volledig voorbereid op een gasloze toekomst en levert direct voordeel op je energierekening – zó wil je wonen in 2025. Daarnaast biedt deze ruime woning met vijf slaapkamers, twee dakkapellen op zolder, en een fraai aangelegde tuin met berging alle ruimte voor het hele gezin. De moderne keuken en sanitaire voorzieningen maken het plaatje compleet. Gelegen in de rustige en kindvriendelijke wijk Rhoon Portland, met alle denkbare voorzieningen én uitstekende verbindingen naar Rotterdam, is dit niet zomaar een huis – dit is een plek waar je jarenlang met plezier zult wonen. Welkom thuis op Titanium 42 – duurzaam, stijlvol en klaar voor de toekomst.

INDELING MET INDICATIEVE MATEN:

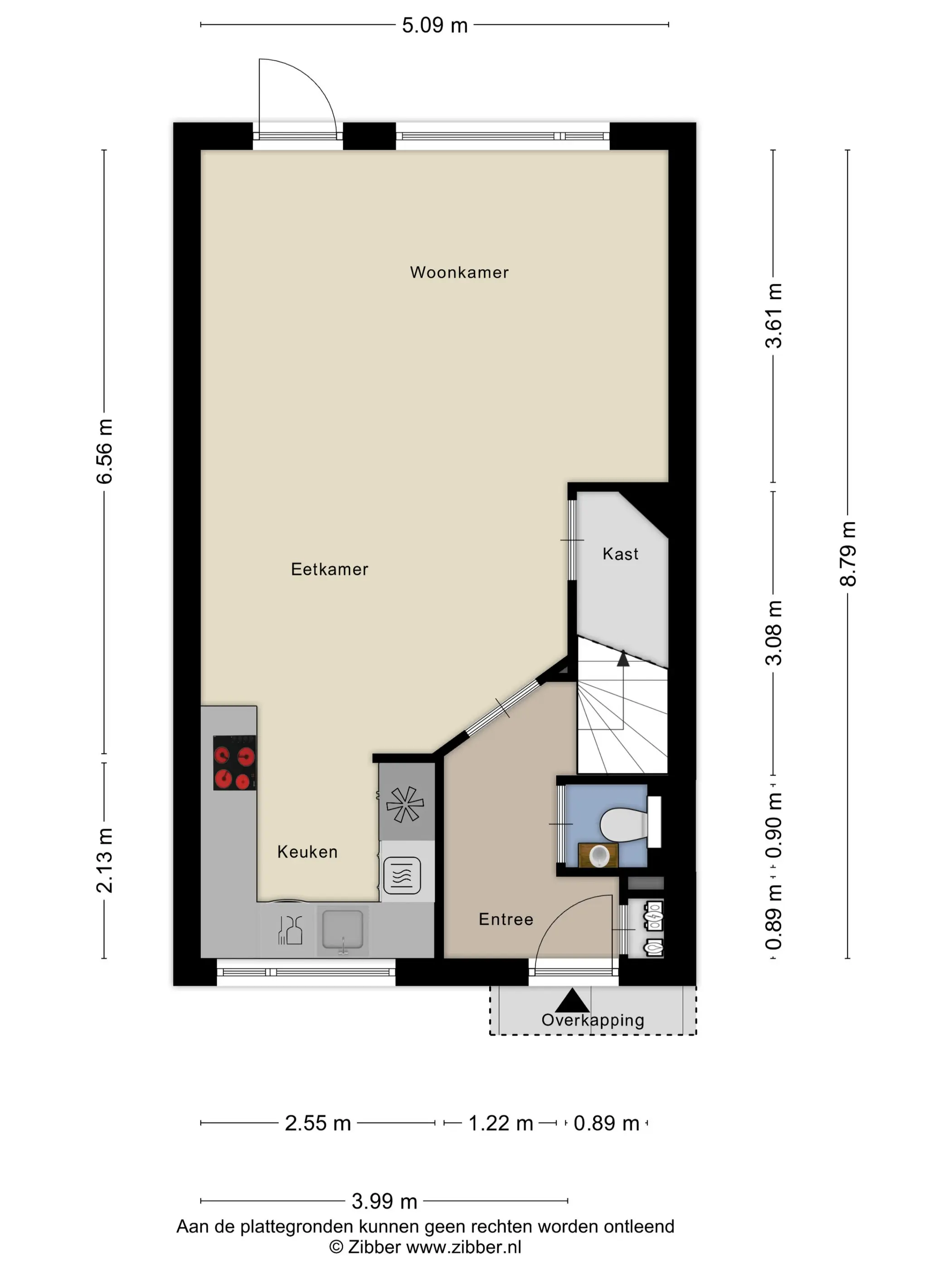
BEGANE GROND

De voortuin is in 2021 opnieuw aangelegd en straalt rust en kwaliteit uit. Hier kan je genieten van de zon of ontspannen met een goed boek.

Entree, ruime hal met meterkast en trap naar de 1e verdieping, fraai afgewerkte toiletruimte voorzien van een hangend toilet en fonteintje. De toiletruimte is geheel betegeld en afgewerkt met Portugese tegels, accessoires in koperen kleur, spotjes en panelen deur.
Middels een glazen deur met stalen look is het woongedeelte te bereiken.

Sfeervolle lichte tuingerichte woonkamer (ca. 31 m2) voorzien van een lichte PVC houtlook vloer in visgraat motief en glad gestucte muren. De vloerverwarming op de begane grond zorgt bovendien voor een aangenaam binnenklimaat, het hele jaar door. De woonkamer is verder voorzien van een trapkast. Middels een loopdeur heeft u toegang tot de achtertuin.

De woning beschikt over een moderne keuken (ca. 7 m2) met hoogwaardige inbouwapparatuur en stijlvolle afwerking. De keuken is gelegen aan de voorzijde van de woning, uitgevoerd in een U-opstelling en voorzien van een koelkast, 3-laden vrieskast, inductie kookplaat, RVS afzuigkap, combi oven magnetron en een vaatwasser. Tevens is de keuken voorzien van een enkele spoelbak, een handige apotheekkast en voldoende kastruimte. Het geheel is uitgevoerd in lichte kleuren en afgewerkt met een kunststof aanrechtblad, wandtegels en een lichte PVC houtlook vloer in visgraat motief met vloerverwarming.

De achtertuin is in 2020 opnieuw aangelegd en ligt op het noordoosten – ideaal voor wie houdt van de ochtendzon en verkoeling in de middag. Zo geniet je 's ochtends van je koffie in het zonnetje en blijft het in de avond heerlijk beschut en koel, ook op warme dagen. De tuin is het hele jaar door een fijne plek om te ontspannen. De achtertuin is voorzien van achterom, twee terrassen, sierbeplanting, twee buitenkranen en een handige berging.

Vrijstaande stenen berging (ca. 7 m2) voorzien van elektra en stopcontact.

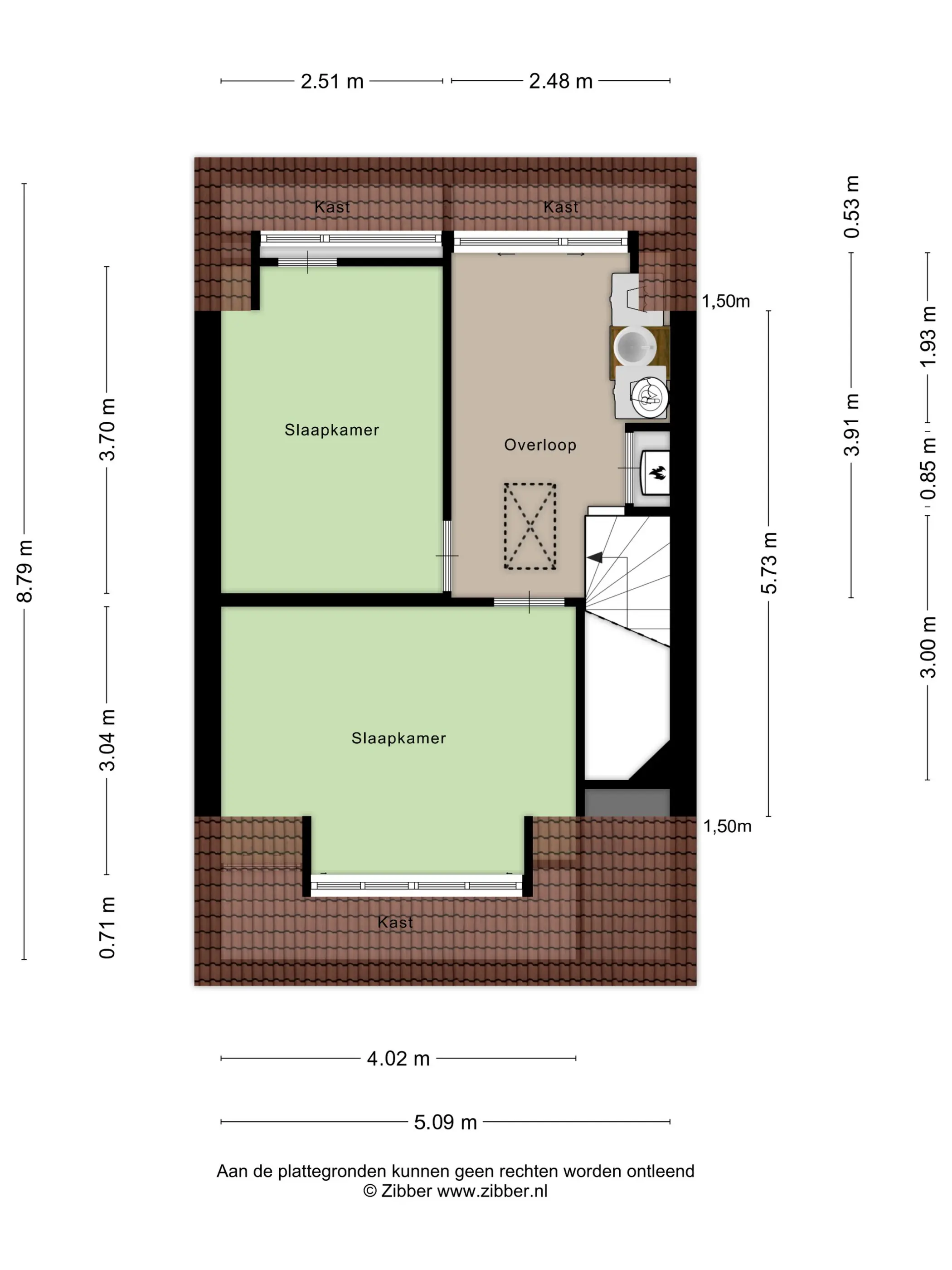
EERSTE VERDIEPING

Ruime overloop met trap naar de 2e verdieping en toegang tot alle vertrekken.

Slaapkamer 1 (ca. 13 m2) is gelegen aan de achterzijde van de woning en beschikt over een 3-deuren schuifkastenwand met een spiegeldeur.
Slaapkamer 2 (ca. 10 m2) is gelegen aan de voorzijde van de woning.
Slaapkamer 3 (ca. 8 m2) is gelegen aan de achterzijde van de woning.
De slaapkamers op deze verdieping zijn voorzien van laminaatvloer, gestucte wanden en hor.

Moderne badkamer (ca. 5 m2) met luxe sanitaire voorzieningen zoals een wastafel met wastafelmeubel, spiegel met spiegelkast en verlichting, hangend tweede toilet, ligbad, douchecabine met regendouche en plafondlamp met ingebouwde muziekspeler met afstandsbediening. De badkamer is gedeeltelijk betegeld en afgewerkt met Portugese tegelvloer.

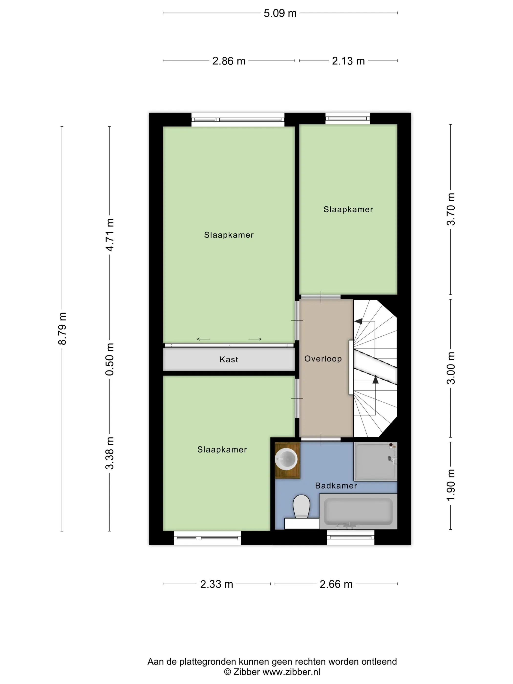
TWEEDE VERDIEPING

Voorzolder, vaste kast met stelplaats voor de HR C.V. combiketel (Vaillant december 2023), hybride warmtepomp installatie, boiler (Vaillant), mechanische ventilatie, wasmachine- en drogeraansluiting, een deel van de dakkapel, bergruimte achter het knieschot en een wastafel met een handige plank om de kleding te kunnen vouwen. De voorzolder is afgewerkt met een lichte laminaatvloer en hor. Via een vlizotrap is de bergvliering bereikbaar.

Slaapkamer 4 (ca. 12 m2) is gelegen aan de voorzijde van de woning en beschikt over een kunststof dakkapel met elektrisch rolluik en hor, lichte laminaatvloer en bergruimte achter het knieschot.

Slaapkamer 5 (ca. 9 m2) is gelegen aan de achterzijde van de woning en beschikt over een kunststof dakkapel met hor, lichte laminaatvloer en bergruimte achter het knieschot.

BIJZONDERHEDEN:

- Goede geïsoleerde woning met energielabel A++;
- 12 zonnepanelen met ingebouwde omvormer en hybride warmtepomp aanwezig;
- HR++ isolatieglas en vloerverwarming op de begane grond;
- Verwarming en warmwater middels CV Ketel Vaillant bouwjaar december 2023;
- Zolderverdieping beschikt over twee dakkapellen (voor- en achterzijde);
- Vijf ruime slaapkamers;
- Moderne keuken en sanitaire voorzieningen;
- Fraai aangelegde tuin;
- Gelegen in rustige, groene wijk met veel voorzieningen;
- Uitstekende bereikbaarheid richting Rotterdam en omgeving.

MAKELAAR- JAN-HEIN SCHILDERMAN
Lees meer

Kenmerken

Overdracht

Vraagprijs
€ 525.000,- k.k.
Status
verkocht onder voorbehoud
Aanvaarding
in overleg

Bouw

Soort woning
woonhuis
Soort woonhuis
eengezinswoning
Type woonhuis
tussenwoning
Aantal woonlagen
3
Bouwjaar
2007
Onderhoud binnen
goed
Onderhoud buiten
goed
Voorzieningen
mechanische ventilatie, zonnepanelen
Isolatie
dakisolatie, muurisolatie, vloerisolatie, dubbel glas, hr glas

Energie

Energielabel
A++
Verwarming
cv ketel, vloerverwarming gedeeltelijk, warmtepomp
Warm water
cv ketel, zonneboiler
C.V.-ketel
gas gestookte combi-ketel uit 2023 van Vaillant, eigendom

Oppervlakten en inhoud

Woonoppervlakte
125 m²
Perceeloppervlakte
125 m²
Inhoud
442 m³
Bergruimte oppervlakte
7 m²
Buitenruimte oppervlakte
1 m²

Indeling

Aantal kamers
6

Buitenruimte

Ligging
aan rustige weg, in woonwijk
Tuin
achtertuin met een oppervlakte van 61 m² en is gelegen op het noordoosten

Garage / Schuur / Berging

Garage
geen garage
Parkeergelegenheid
openbaar parkeren
Schuur/berging
vrijstaand steen

Plattegronden

Downloads

Video's

Locatie

Jan-Hein Schilderman

Interesse in deze woning?

Jan-Hein Schilderman

Vraag een bezichtiging aan

Vraag een bezichtiging aan of neem contact met ons op