Waddenring 24

2993 VE BARENDRECHT
Verkocht onder voorbehoud
verkocht onder voorbehoud

Omschrijving

Stelt u zich voor: wonen in een unieke vuurtorenwoning met alle openbare voorzieningen binnen handbereik. Deze bijzondere woning, gebouwd in 2001 onder architectuur, ligt direct aan het water en biedt een zee van ruimte zowel binnen als buiten. Het is een woning die zeker niet standaard is, maar juist opvalt door zijn unieke karakter en verrassende indeling. De royale kamers bieden tal van mogelijkheden en de buitenruimtes nodigen uit tot ontspannen en genieten. Of u nu wilt genieten van de prachtige tuin aan het water met een vrij uitzicht of heerlijk wilt relaxen in de jacuzzi met volledige privacy, deze woning heeft het allemaal. De overkapping zorgt voor beschutting, en parkeren kunt u op uw eigen erf.

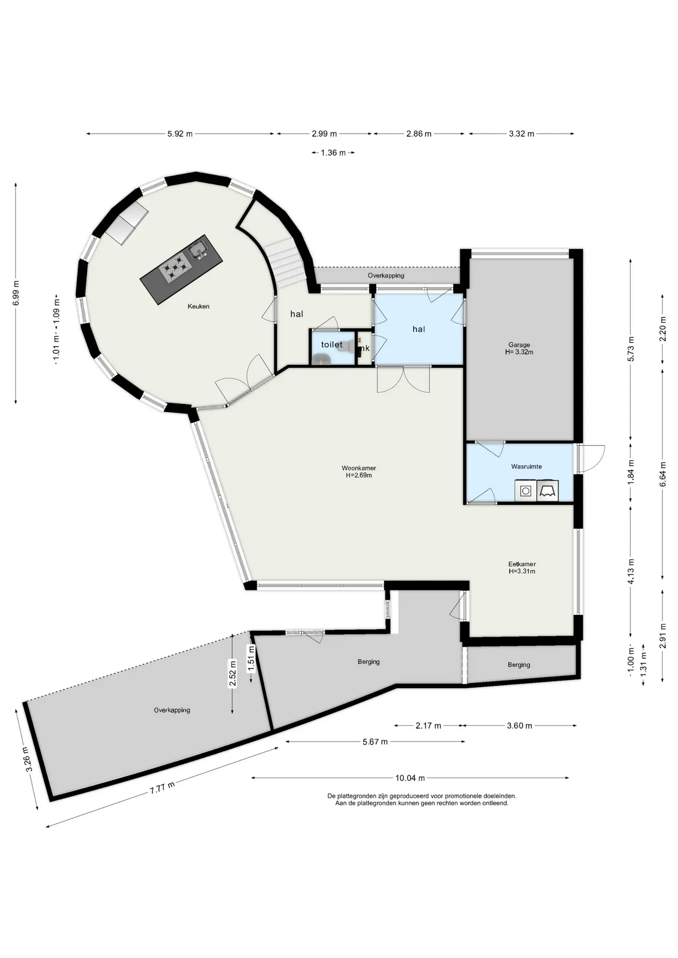
BEGANE GROND:
Bij binnenkomst via de entree komt u in de hal, die toegang biedt tot de garage, de moderne toiletruimte en de meterkast.

Via dubbele deuren komt u in de ruime woonkamer met enorme glaspartijen en een grote schuifpui naar de tuin. De vloer is bekleed met mooie grijze tegels en voorzien van vloerverwarming, wat zorgt voor een behaaglijke sfeer. Het eetgedeelte is apart en biedt toegang tot de bijkeuken, waar aansluitingen voor een wasmachine en droger aanwezig zijn. De bijkeuken is tevens bereikbaar vanuit de garage en via een deur heeft u ook toegang tot de tuin.

KEUKEN
De lichte keuken, gelegen aan de voorzijde van de woning in de "toren", is uitgerust met een kookeiland en alle benodigde inbouwapparatuur, uitgevoerd in het wit en afgewerkt met een zwart natuurstenen aanrechtblad. Vanuit de keuken heeft u ook toegang tot de tuin en een grote bergkast zorgt voor extra opbergruimte.

EERSTE VERDIEPING
De ouderslaapkamer met een vaste kast en een en-suite badkamer vindt u op de eerste verdieping. Deze complete badkamer is voorzien van een douche, whirlpool, ingebouwde tv, tweede toilet en een wastafelmeubel. De afwerking is in grijs en wit tinten gecombineerd met wit sanitair.

TWEEDE VERDIEPING
De tweede verdieping biedt twee ruime slaapkamers en een tweede badkamer, voorzien van een douche en en een wastafel. Ook is er een separaat toilet op deze verdieping aanwezig.

DERDE VERDIEPING
De derde verdieping bestaat uit een open ruimte met de verlichte koepel, die tal van mogelijkheden biedt. Een waanzinnige werkplek of een hele bijzondere slaapkamer! Hier kunt u genieten van het adembenemende 360 graden uitzicht.

TUIN
De tuin is recent aangelegd en voorzien van heerlijke terrassen, een grote overkapping, een jacuzzi met buitendouche. Een mooi verlengstuk van de woning waar u heerlijk kunt ontspannen. Op de vlonder aan het water geniet u van een vrij uitzicht over de Gaatkensplas. Tuin heeft een gunstige ligging: zuid georiënteerd.

De berging (met uitbouw) biedt u veel bergruimte.

Deze woning is een waar juweeltje voor wie op zoek is naar iets bijzonders. Kom langs en laat u verrassen door de ruimte, de mogelijkheden en de unieke locatie aan het water.

BIJZONDERHEDEN:

- Vrijstaande woning gelegen aan het water
- Gebouwd in 2001 onder architectuur
- Ruime woonkamer en keuken voorzien van comfort verhogende vloerverwarming
- Moderne keuken met kookeiland en inbouwapparatuur
- Drie slaapkamers en twee badkamers
- Jacuzzi en buitendouche in de tuin
- Overdekte buitenruimte met een buitenhaard
- Eigen parkeerplaatsen
- Verwarming middels stadsverwarming
- Prachtige ligging aan de Gaatkensplas

Makelaar: Lisa Hagens
Lees meer

Kenmerken

Overdracht

Vraagprijs
€ 995.000,- k.k.
Status
verkocht onder voorbehoud
Aanvaarding
in overleg

Bouw

Soort woning
woonhuis
Soort woonhuis
villa
Type woonhuis
vrijstaande woning
Aantal woonlagen
4
Bouwjaar
2002
Onderhoud binnen
goed
Onderhoud buiten
goed
Voorzieningen
mechanische ventilatie, natuurlijke ventilatie

Energie

Energielabel
A
Warm water
stadsverwarming

Oppervlakten en inhoud

Woonoppervlakte
237 m²
Perceeloppervlakte
449 m²
Inhoud
781 m³
Inpandige ruimte oppervlakte
19 m²
Bergruimte oppervlakte
17 m²
Buitenruimte oppervlakte
2 m²

Indeling

Aantal kamers
5

Buitenruimte

Ligging
aan water, vrij uitzicht

Garage / Schuur / Berging

Garage
inpandige garage
Parkeergelegenheid
op eigen terrein
Schuur/berging
aangebouwd hout

Plattegronden

Downloads

Video's

Locatie

Lisa Hagens

Interesse in deze woning?

Lisa Hagens

Vraag een bezichtiging aan

Vraag een bezichtiging aan of neem contact met ons op