Zilvervloot 44

3162 XP RHOON
Verkocht

Omschrijving

Deze prachtige woning ligt aan de rustige rand van de geliefde wijk Portland, op een gunstige locatie dichtbij natuurgebieden, winkels en goede verbindingswegen. Of je nu op zoek bent naar een gezinshuis met voldoende ruimte voor iedereen, of een woning waar je nog extra kamers kunt creëren, deze woning biedt het allemaal.
De woning beschikt over vier ruime slaapkamers, met de mogelijkheid om extra kamers te realiseren. De grote living is zeer licht en sfeervol, dankzij de grote raampartijen en openslaande deuren naar de achtertuin, waar je op zonnige dagen heerlijk kunt genieten van buiten. De moderne woonkeuken met kookeiland en alle comfort biedt een perfecte plek om gezellige maaltijden te bereiden en te genieten met familie en vrienden.
De woning is geschikt voor diverse woonwensen en biedt niet alleen veel ruimte en comfort, maar ook praktische voorzieningen zoals een aangebouwde garage, een ruime oprit om je auto te parkeren, en een grote tuin aan drie zijden. De volledige badkamer op de eerste verdieping is voorzien van een ligbad en extra inloopdouche, terwijl de tweede verdieping nog 2 slaapkamers en extra bergruimte biedt.
Ideaal gelegen op korte afstand van wandel- en fietsroutes langs de polder, de Oude Maas en de nabijgelegen golfbaan. Winkels, scholen en kinderopvang bevindt zich binnen handbereik, evenals openbaar vervoer en uitvalswegen voor een snelle verbinding naar omliggende steden. Deze woning combineert ruimte, comfort en potentieel in een aantrekkelijke omgeving.

Indeling met indicatieve maten

BEGANE GROND:

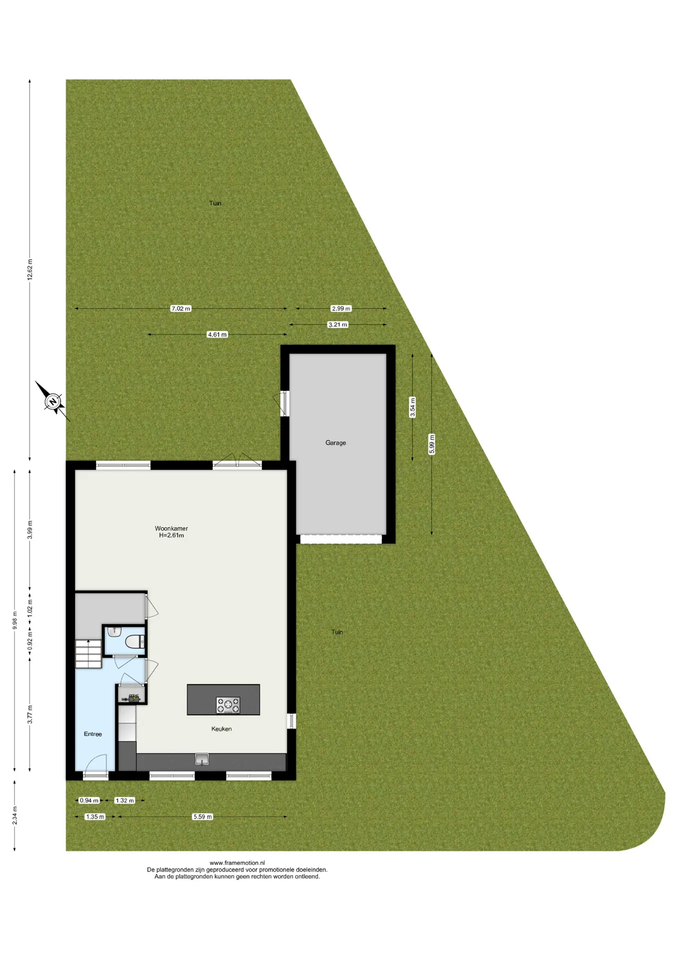
Bij binnenkomst voel je meteen de ruime en lichte sfeer dankzij de grote ramen en open indeling. De hal geeft toegang tot het separate toilet en de meterkast. De woonkamer (ca. 56 m² inclusief keuken), voorzien van openslaande deuren naar de achtertuin, biedt veel ruimte voor zowel een gezellige zithoek als een eettafel en is voorzien van een fraaie PVC vloer met vloerverwarming. De charmante woonkeuken aan de voorzijde heeft een ruime hoekopstelling met een apart kookeiland, voorzien van inductiekookplaat met een vrijhangende RVS afzuigkap, oven, magnetron, Quooker, koel/vriescombinatie en een vaatwasser. Vanuit de keuken heb je een mooi uitzicht op de straat, terwijl de living met grote ramen en openslaande deuren een heerlijke lichte sfeer geeft. De aangebouwde stenen garage(ca. 19 m²) is bereikbaar vanaf de voorzijde en de tuinzijde. De achtertuin is sfeervol aangelegd met diverse terrassen, gras en sierbestrating, ideaal voor ontspanning en buitenspelen. Door de hoge begroeing met Hedera en Laurierkers biedt de achtertuin veel privacy. Parkeren kan voor de garage op de eigen oprit.

EERSTE VERDIEPING:

Op de eerste verdieping vind je een ruime overloop met toegang tot 2 slaapkamers, die beide nog te splitsen zijn waardoor er 4 slaapkamers mogelijk zijn. De vloeren zijn afgewerkt met laminaat, en zowel de slaapkamers als de overloop bieden veel ruimte en licht. De hoofdslaapkamer heeft een grote inbouwkastenwand voor extra opbergruimte.

Slaapkamer 1 (ca. 28 m²)
Slaapkamer 2 (ca. 20 m²)

De badkamer (ca. 6 m²) is compleet en modern ingericht met ligbad, aparte douchecabine, dubbel wastafelmeubel en wit/grijze tegels. Daarnaast is er een aparte toiletruimte op de gang, waardoor comfort en privacy gewaarborgd worden.

TWEEDE VERDIEPING:

De tweede verdieping biedt nog eens twee slaapkamers met grote ramen en hoge plafonds, waardoor er een speelse en ruimtelijke sfeer ontstaat. Een aparte was- en stookruimte herbergt de wasmachine, droger, CV-ketel, omvormer voor zonnepanelen en andere installaties. De slaapkamers maken gebruik van extra bergruimte achter de knieschotten en een dakkapel aan de achterzijde zorgt voor daglicht en frisse lucht.

Slaapkamer 3 (ca. 22 m²) gelegen aan de achterzijde en voorzien van een dakkapel
Slaapkamer 4 (ca. 12 m²) gelegen aan de voorzijde en voorzien van een Velux dakraam

- Ruime 2/1 kapwoning met aangebouwde garage en oprit
- Vier slaapkamers, met de mogelijkheid tot het creëren van meerdere kamers
- Prachtige en lichte woonkeuken met kookeiland en alle luxe apparatuur
- Gehele begane grond afgewerkt met een PVC vloer met vloerverwarming
- Grote, zonnige tuinen rondom de woning, ideaal voor buitenleven
- Complete badkamer met ligbad en inloopdouche
- Gelegen op korte afstand van natuur, winkels, scholen en openbaar vervoer
- Uitbreidingsmogelijkheden door nog te splitsen of kamers te realiseren

Makelaar: Marco Bos
Lees meer

Kenmerken

Overdracht

Status
verkocht
Aanvaarding
in overleg

Bouw

Soort woning
woonhuis
Soort woonhuis
eengezinswoning
Type woonhuis
twee onder een kapwoning
Aantal woonlagen
3
Bouwjaar
2019
Onderhoud binnen
goed
Onderhoud buiten
goed

Energie

Energielabel
A
Verwarming
cv ketel, vloerverwarming gedeeltelijk
C.V.-ketel
combi-ketel

Oppervlakten en inhoud

Woonoppervlakte
179 m²
Perceeloppervlakte
393 m²
Inhoud
713 m³
Inpandige ruimte oppervlakte
19 m²

Indeling

Aantal kamers
5

Garage / Schuur / Berging

Garage
aangebouwde stenen garage
Parkeergelegenheid
openbaar parkeren, op eigen terrein

Foto's

Plattegronden

Downloads

Video's

Locatie

Ook jouw woning succesvol verkopen?

Neem dan contact op

Gratis waardebepaling

Vraag een bezichtiging aan of neem contact met ons op