Zwijnenburg 7

2994 EN BARENDRECHT
Verkocht

Omschrijving

Ruime, energiezuininge en speels ingedeelde woning met royale woonkamer, zonnig terras, twee badkamers en eigen parkeerplaats in de afgesloten garage

Barendrecht – Vrijenburg

Deze modern afgewerkte woning in de gewilde wijk Vrijenburg biedt een verrassend ruime en speelse indeling, met volop licht, comfort en gemak. De woning beschikt over een royale doorzonwoonkamer met open keuken, drie slaapkamers, twee badkamers, en een eigen parkeerplaats direct onder de woning — veilig en droog naar binnen!
De ligging van deze woning is gunstig ten opzichte van openbaar vervoer (TramlijnPlus naar Rotterdam), uitvalswegen, winkels en sportfaciliteiten.

Indeling

Begane grond:
Entree met hal en modern toilet. Op deze verdieping bevindt zich tevens een slaapkamer met eigen badkamer voorzien van ligbad en wastafel – ideaal voor logees, volwassen kinderen of als comfortabele werk- of praktijkruimte aan huis.
In de inpandige hal vind je de ruimte ten behoeve van de aansluiting voor de wasmachine en toegang tot de parkeerplaats in de afgesloten parkeergarage – wel zo veilig en praktisch bij slecht weer.

Eerste verdieping – de woonverdieping:
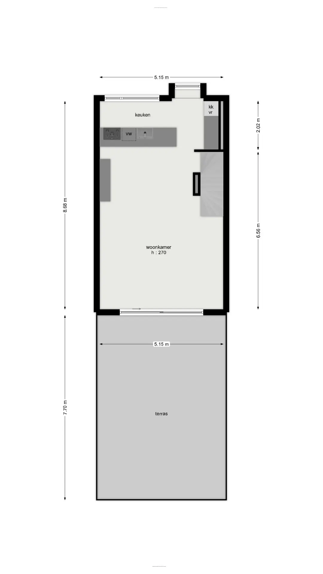
De riante woonkamer is bijzonder licht dankzij de grote raampartijen en schuifpui naar het zonnige terras. Het terras is afgewerkt met kunstgras en omgeven door een strakke schutting, wat zorgt voor veel privacy. Bovendien beschikt het terras over een achteruitgang.

De open keuken aan de voorzijde van de woning is een echte blikvanger. Deze is voorzien van een groot schiereiland met RVS-blad, inductie kookplaat, afzuig schouw, gootsteen en volop bergruimte. De keukeninrichting combineert een stijlvolle donkerblauwe kleur met houtlook accenten: een hete luchtoven, koelkast en een vrieskast ontbreken uiteraard niet in deze keuken.
Nagenoeg de gehele verdieping is afgewerkt met keramisch parket met vloerverwarming, wat zorgt voor een moderne en onderhoudsarme uitstraling. Dezelfde vloer ligt ook op de begane grond inclusief de vloerverwarming.

Tweede verdieping:
Via de trap bereik je de slaapverdieping met twee slaapkamers (voorheen drie). De ouderslaapkamer straalt hotelallure uit en beschikt over airconditioning en een royale inloopkast achter stijlvolle schuifdeuren.

De tweede slaapkamer aan de voorzijde is speels ingedeeld en heeft extra hoogte, waardoor er een hoogslaper is gerealiseerd – ideaal voor kinderen of als creatieve werkplek.

De badkamer is uitgerust met een inloopdouche met regendouche, dubbele wastafel met meubel, verlichte spiegelkast, designradiator en toilet. Ook hier komt de prettige hoogte van de ruimte mooi tot zijn recht.
Op de overloop bevindt zich een kast met de CV-installatie (Remeha, 2020). De verdieping is voorzien van een laminaatvloer.

Pluspunten van deze woning

De woonkamer en ouderslaapkamer, aan de achterzijde, is voorzien van een electrisch bedienbaar rolluik

De woonkamer en de ouderslaapkamer zijn voorzien van airconditioning

Actieve en gezonde VVE

Woning is voorzien van kunststof kozijnen met dubbele beglazing

Eigen parkeerplaats direct onder de woning

Terras met kunstgras, schutting en achteruitgang

Vloerverwarming op de woonverdieping en op de begane grond

Keuken met groot schiereiland en veel bergruimte

Woning is goed onderhouden

Centraal gelegen nabij tramplus richting Rotterdam, winkels, sportvoorzieningen en uitvalswegen
Lees meer

Kenmerken

Overdracht

Status
verkocht
Aanvaarding
in overleg

VvE checklist

Inschrijving KVK
Ja
Jaarlijkse vergadering
Ja
Periodieke bijdrage
Ja (150,00 per maand)
Reservefonds aanwezig
Ja
Onderhoudsplan
Ja
Opstalverzekering
Ja

Bouw

Soort woning
appartement
Soort appartement
beneden plus bovenwoning
Aantal woonlagen
3
Woonlaag
3
Bouwjaar
2007
Open portiek
nee
Onderhoud binnen
goed
Onderhoud buiten
goed
Voorzieningen
mechanische ventilatie, alarminstallatie, rolluiken, airconditioning, schuifpui, zonnepanelen, natuurlijke ventilatie

Energie

Energielabel
A
Verwarming
cv ketel
Warm water
cv ketel

Oppervlakten en inhoud

Woonoppervlakte
114 m²
Buitenruimte oppervlakte
41 m²

Indeling

Aantal kamers
4

Garage / Schuur / Berging

Garage
geen garage
Parkeergelegenheid
parkeergarage

Foto's

Plattegronden

Downloads

Video's

Locatie

Ook jouw woning succesvol verkopen?

Neem dan contact op

Gratis waardebepaling

Vraag een bezichtiging aan of neem contact met ons op